Charming two-bed cottage near dunes — ideal for holiday income or family life.
Successful holiday let; offered fully furnished
This attractive two-bedroom semi-detached cottage on King Street blends coastal character with practical living. Currently run as a successful holiday let, it’s offered fully furnished and sits a short distance from Winterton-on-Sea’s dunes and beach — ideal for continued holiday income or an easy transition to a permanent family home.
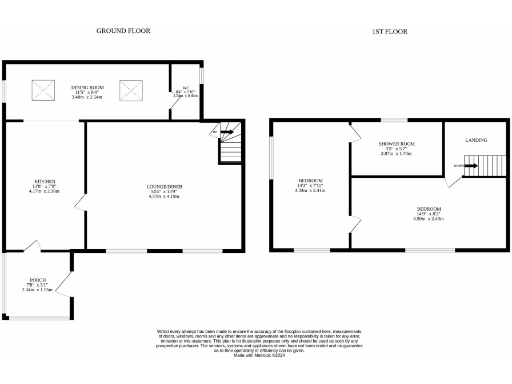
Inside, the sitting room centres on a wood burner and exposed timber features, creating a warm, cosy atmosphere. The fitted kitchen/dining room provides usable cooking and dining space, while two double bedrooms and a shower room occupy the first floor. The fully enclosed, well-kept garden offers privacy and a secure outdoor area on a modest plot.
Buyers should note the property’s age and traditional construction: solid brick walls with no cavity insulation assumed, electric storage heating and an EPC rating of F. These factors mean energy costs and upgrade work (insulation, heating improvements, possible electrical review) should be factored into budgets. Overall, this cottage offers seaside character and flexibility — a straightforward holiday let, a comfortable family starter, or a renovation project to add value.
2 bedroom semi-detached house for sale in King Street, Winterton-on-Sea, NR29 — £230,000 • 2 bed • 1 bath • 825 ft²
2 bedroom cottage for sale in Winterton On Sea, NR29 — £315,000 • 2 bed • 2 bath • 854 ft²
3 bedroom cottage for sale in Chain Free in Winterton-On-Sea, NR29 — £300,000 • 3 bed • 1 bath • 756 ft²
4 bedroom detached house for sale in The Loke, Winterton-On-Sea, NR29 — £400,000 • 4 bed • 2 bath • 1133 ft²
2 bedroom cottage for sale in Beach Road, Winterton-On-Sea, Great Yarmouth, NR29 — £325,000 • 2 bed • 1 bath • 1389 ft²
3 bedroom cottage for sale in Prospect Place, Winterton-On-Sea, NR29 — £200,000 • 3 bed • 1 bath • 764 ft²










































































