Large family home with mature garden and extensive parking in sought-after village.
- Detached four-bedroom cottage with strong period character
- Three reception rooms and three bathrooms, flexible family layout
- Large landscaped rear garden with decking and summer house
- Block-paved driveway, detached double garage and workshop
- Generous overall internal space (listed as very large, 3,403 sqft)
- Stone walls likely uninsulated; may need thermal upgrades
- Double glazing present; install date unknown, confirm condition
- Situated in very low crime, affluent village with good schools
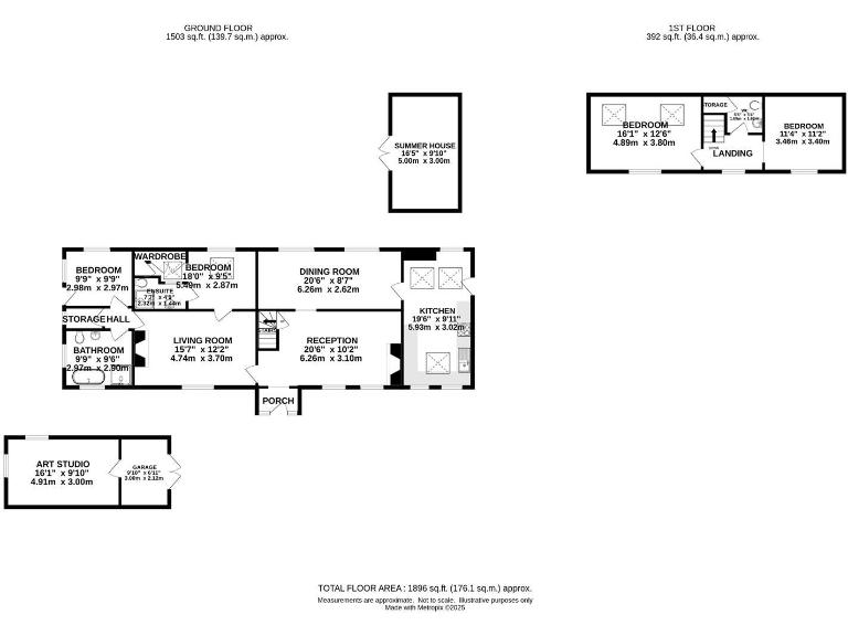
This substantial four-bedroom detached cottage on Woodend Road blends period charm with generous family living. Internally you’ll find exposed beams, stone window seats and a wood-burning stove alongside three reception rooms and three bathrooms — plenty of flexible space for family life, home working and entertaining.
The garden is a standout: well-landscaped lawns, decking, flagged seating with fire pit, a summer house with power and far-reaching outlooks create private outdoor space for all seasons. A large block-paved driveway, detached double garage and an adjoining workshop/artist space provide exceptional parking and storage — the listing notes capacity for many vehicles.
Practical details are reassuring: mains gas central heating, double glazing (install date unknown) and a combination boiler in the loft. The house sits in a very low-crime, affluent village area with good local primary and secondary schools, making it well suited to families seeking village living with strong community amenities.
A truthful point to note: the property is an older build (pre-1900) with stone walls that are assumed uninsulated — some thermal upgrade work (wall insulation, checking glazing age) may be needed to improve energy efficiency. Buyers should also confirm measured floor area and services in person, and inspect the garage/workshop for any repair or maintenance needs.
4 bedroom detached house for sale in Beesmoor Road, Bristol, BS36 — £900,000 • 4 bed • 2 bath • 2444 ft²
4 bedroom detached house for sale in School Road, Bristol, BS36 — £750,000 • 4 bed • 3 bath • 1771 ft²
2 bedroom cottage for sale in The Gully, Winterbourne, Bristol, BS36 — £300,000 • 2 bed • 1 bath • 891 ft²
3 bedroom detached bungalow for sale in Frampton End Road, Frampton Cotterell, Bristol, BS36 — £500,000 • 3 bed • 1 bath • 928 ft²
4 bedroom detached house for sale in Church Road, Frampton Cotterell, Bristol, BS36 — £500,000 • 4 bed • 1 bath • 1411 ft²
3 bedroom character property for sale in Wraxall Road, Bristol, BS30 — £375,000 • 3 bed • 2 bath • 830 ft²


































































































































































































