Large refurbished village house with courtyard garden and garage parking.
Approximately 3,062 sq ft of refurbished, characterful accommodation
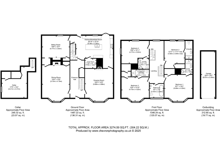
Occupying a prime spot in historic Lavenham, this Grade II listed period house blends original character with high-quality recent refurbishment. Four double bedrooms each with en-suite plus a family bathroom make it an exceptionally flexible home for families who need space for guests or home working. The Neptune island kitchen and three reception rooms create generous daytime living and entertaining areas, while a cellar has been fitted as a dedicated entertaining/wine space.
Externally the property offers a low-maintenance, sunny walled courtyard and sheltered parking with a double-length garage within an exclusive converted mill development. The central location is a short walk to the market place and village amenities, putting schools, shops and cafes within easy reach. The house benefits from upgraded hot water pressurisation to run multiple en-suites simultaneously — a practical upgrade for larger households.
Buyers should note practical constraints: the house is Grade II listed and sits in a conservation area, so alterations will require consent and may be restricted. A maintenance charge is payable for access through Bakers Mill (amount TBC), broadband speeds are slow locally, and council tax sits in a higher band. The plot is compact, so outdoor space is courtyard-style rather than expansive garden.
Overall, this newly renovated, chain-free home suits families seeking generous, characterful accommodation and easy access to village life, provided they accept listed-building responsibilities and a town-centre plot footprint.
3 bedroom terraced house for sale in Lavenham, Sudbury, Suffolk, CO10 — £300,000 • 3 bed • 1 bath • 1026 ft²
3 bedroom town house for sale in Ropers Court, Lavenham, CO10 — £510,000 • 3 bed • 2 bath • 1535 ft²
2 bedroom terraced house for sale in Lavenham, Sudbury, Suffolk, CO10 — £350,000 • 2 bed • 1 bath • 559 ft²
5 bedroom detached house for sale in Trinity Gild, Lavenham, Suffolk, CO10 — £595,000 • 5 bed • 1 bath • 2252 ft²
2 bedroom terraced house for sale in Prentice Street, Lavenham, Sudbury, CO10 — £450,000 • 2 bed • 1 bath • 1000 ft²
4 bedroom detached house for sale in Lower Road, Lavenham, Suffolk, CO10 — £565,000 • 4 bed • 3 bath • 1742 ft²


































































































