Chain-free home backing onto a green, minutes from Kidbrooke and Lee stations.
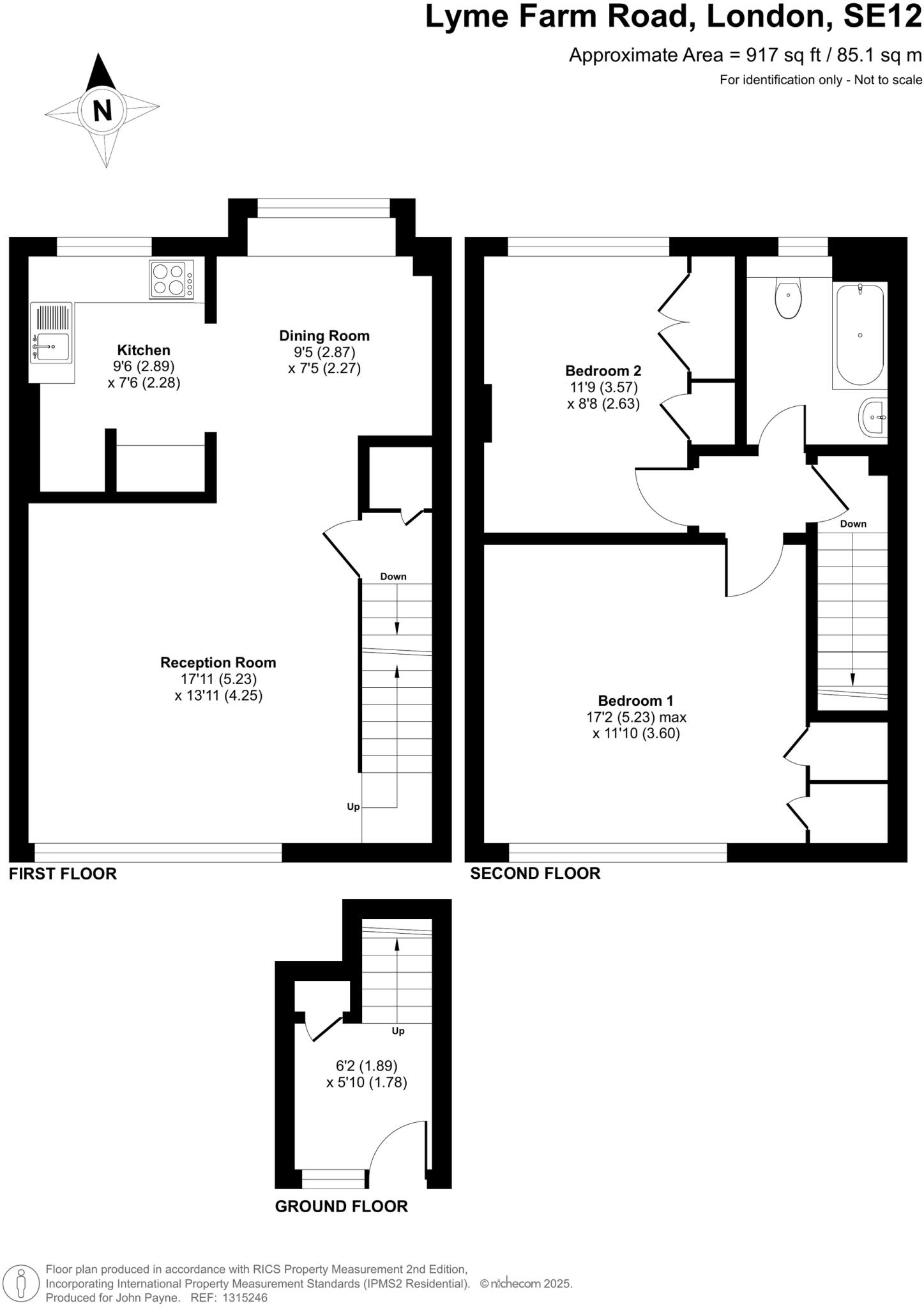
Chain-free split-level maisonette with private entrance
Two double bedrooms with built-in wardrobes
Open lounge-dining and modern fitted kitchen
Contemporary bathroom; loft storage available
Private garden; overlooks communal green
171 years remaining on the lease (leasehold)
1960s construction; cavity walls likely uninsulated
No service charge/ground rent figures provided
Set over two levels, this split-level maisonette offers two double bedrooms and a bright, open living space overlooking a communal green. The modern fitted kitchen, contemporary bathroom and double glazing make it ready to move into, while the private entrance and small garden add practical outdoor space for a first home.
Location is the standout: under a mile to Kidbrooke and Lee stations and about half a mile from Kidbrooke Village, making commuting straightforward. Local schools include highly rated Wingfield Primary and several good secondaries; nearby Blackheath Village provides cafes and shops for weekends.
The property is leasehold with 171 years remaining; there are no service charge or ground rent figures provided. Built in the late 1960s/early 1970s with cavity walls that likely lack insulation, the house may benefit from energy improvements over time. Council Tax Band C keeps ongoing costs reasonable.
This is a practical, chain-free opportunity for a first-time buyer or commuter couple seeking a spacious, well-located home with clear potential to personalise and improve energy efficiency.
2 bedroom maisonette for sale in Fairby Road, Lee, SE12 — £375,000 • 2 bed • 1 bath • 889 ft²
2 bedroom maisonette for sale in Lyme Farm Road, Lee, SE12 — £350,000 • 2 bed • 1 bath • 860 ft²
2 bedroom maisonette for sale in Courtlands Avenue, Lee, SE12 — £350,000 • 2 bed • 1 bath • 876 ft²
2 bedroom apartment for sale in Fairby Road, Lee, SE12 — £365,000 • 2 bed • 1 bath • 886 ft²
3 bedroom flat for sale in Alwold Crescent, Lee, London, SE12 — £395,000 • 3 bed • 1 bath • 880 ft²
2 bedroom maisonette for sale in Lyme Farm Road, London, SE12 — £375,000 • 2 bed • 1 bath • 883 ft²






















































