Spacious family layout near excellent schools and transport links.
Chain free with long lease (c.231 years)
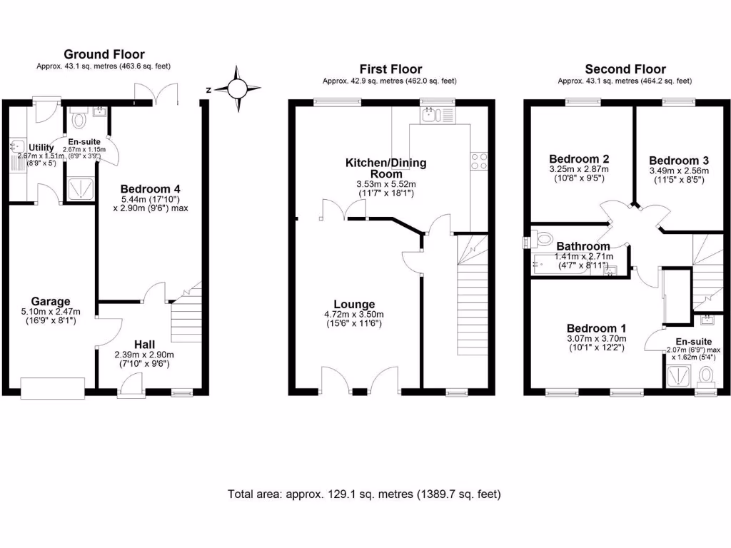
This three-storey, four-bedroom town house offers practical family living in a sought-after Great Sankey location. The ground-floor bedroom and en suite provide flexible space for guests or a work-from-home office, while the top two floors hold the main living areas and three further bedrooms. The open-plan kitchen/dining room with double patio doors creates an easy flow to the neat, low-maintenance rear garden.
The property is chain free and set on a long lease (c.231 years remaining), making it straightforward to purchase. An integral garage and front driveway provide convenient off-street parking. Built between 2007–2011 and fitted with double glazing and mains gas central heating, the home is in generally clean, neutral condition but would benefit from some modernising and cosmetic updating in places (for example, carpets and finishes).
Local amenities and transport are close by, including a dedicated train station and good bus links, and several highly rated primary and secondary schools within walking distance. Broadband speeds are fast and mobile signal excellent, supporting family and home-working needs. Note this is a leasehold property with a small ground rent of £125 and moderate council tax; buyers should confirm service charge details where applicable.
4 bedroom end of terrace house for sale in Bainbridge Crescent, Great Sankey, WA5 — £292,500 • 4 bed • 3 bath • 1044 ft²
3 bedroom town house for sale in The Lees, Great Sankey, Warrington, WA5 — £330,000 • 3 bed • 2 bath • 1150 ft²
3 bedroom town house for sale in Phoenix Place, Chapelford, Warrington, WA5 — £269,500 • 3 bed • 2 bath • 1108 ft²
4 bedroom detached house for sale in Goldendale Walk, Washington Drive, Great Sankey, Warrington, WA5 — £425,000 • 4 bed • 3 bath • 1711 ft²
3 bedroom terraced house for sale in Bainbridge Crescent, Great Sankey, WA5 — £295,000 • 3 bed • 4 bath • 1152 ft²
3 bedroom detached house for sale in Brunswick Close, Great Sankey, Warrington, WA5 — £340,000 • 3 bed • 2 bath • 911 ft²


















































































































































