Affordable period home near transport and town centre.
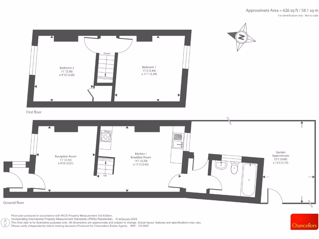
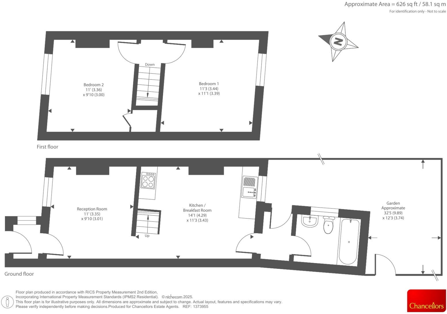
Two bedrooms in a Victorian mid-terrace (approx. 626 sq ft)
Chain free — ready for a quick purchase
Walking distance to town centre, train and bus stations
Small garden included; outdoor space for plants or seating
Solid brick construction; likely no cavity wall insulation
Double glazing fitted since 2002; mains gas boiler and radiators
Local area: higher crime rate and general deprivation
Council tax described as very cheap
This two-bedroom Victorian mid-terrace offers a genuine entry point to Banbury with immediate access to town centre shops, train and bus stations. The compact footprint (approx. 626 sq ft) includes period character such as a bay window and red-brick façade, plus modern double glazing and gas central heating.
The property is chain free, making a quick move possible for first-time buyers or investors seeking a rental. The layout provides straightforward living and bedroom space, with a small garden included for outside space and potential landscaping.
Buyers should note practical drawbacks: the terrace is solid brick with no assumed cavity insulation, so improved wall insulation may be needed. The local area has higher-than-average crime and is relatively deprived, which may affect resale or rental yields. The house will suit buyers prepared to carry out light to moderate updating rather than those seeking a fully renovated turnkey home.
Overall this is a pragmatic, affordable purchase for someone prioritising transport links, local amenities and period character, and willing to invest in energy-efficiency improvements and cosmetic modernisation.
2 bedroom terraced house for sale in Banbury, Oxfordshire, OX16 — £230,000 • 2 bed • 1 bath • 871 ft²
2 bedroom terraced house for sale in Merton Street, Banbury, Oxfordshire, OX16 — £260,000 • 2 bed • 1 bath • 709 ft²
2 bedroom terraced house for sale in Merton Street, Banbury, OX16 — £230,000 • 2 bed • 1 bath • 922 ft²
2 bedroom terraced house for sale in Banbury, Oxfordshire, OX16 — £210,000 • 2 bed • 1 bath • 840 ft²
2 bedroom terraced house for sale in Greens Cottage, East Street, Banbury, OX16 — £229,950 • 2 bed • 1 bath • 596 ft²
2 bedroom end of terrace house for sale in Banbury, Oxfordshire, OX16 — £300,000 • 2 bed • 1 bath • 714 ft²


















































































