Price £125,000 for an average-sized 2-bed first-floor maisonette
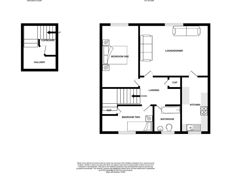
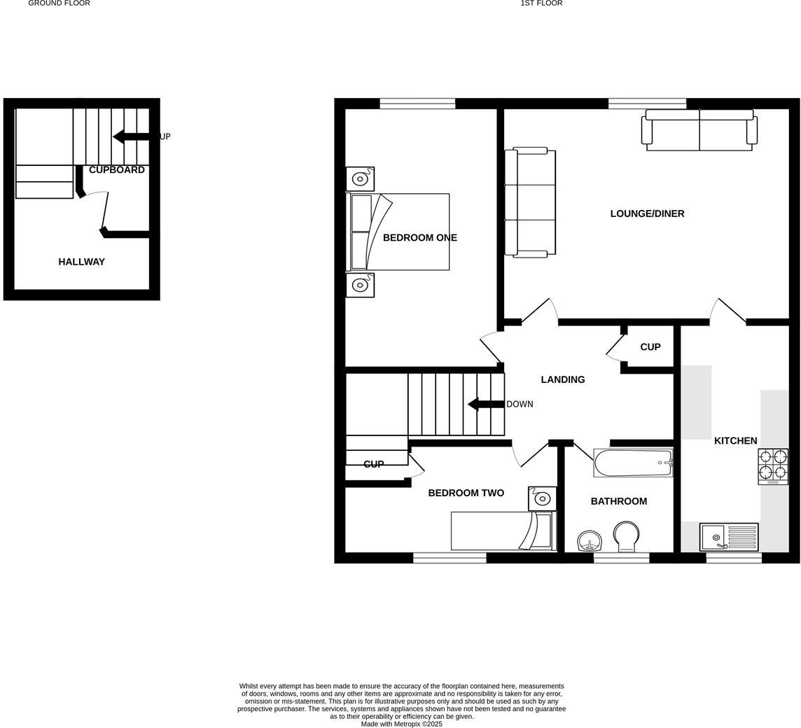
668 sq ft; two bedrooms, lounge/diner, kitchen, bathroom
118 years remaining on lease — long leasehold security
Communal off-street parking (first-come, first-served)
Mains gas boiler and radiators; double glazing (unknown fit date)
Building typical of 1950–66 era; likely needs modernisation
Area: very deprived with above-average crime — affects lettability
Walls assumed cavity with no insulation; potential energy upgrade needed
This first-floor maisonette on Winchester Way presents a straightforward, low-cost entry into the Ipswich rental market. The property offers two bedrooms, a lounge/diner, kitchen and bathroom across c.668 sq ft — a compact, easy-to-manage layout that appeals to single tenants, couples or sharers.
Practical features include mains gas central heating, double glazing (install date unknown), and communal off-road parking used on a first-come, first-served basis. The long lease (118 years remaining) and very low council tax help reduce holding costs, while excellent mobile signal and fast broadband are attractive to modern renters.
Notable drawbacks are the location context and condition: the neighbourhood is classified as very deprived with above-average crime levels, and the building dates from the 1950–66 era with assumed cavity walls lacking insulation. The block and interiors show a dated 1960s/1970s style and will likely need updating to maximise rental income or resale value.
For investors this is a value-driven purchase: a modest purchase price and predictable layout give clear scope for straightforward cosmetic refurbishment and steady rental returns. For owner-occupiers, the maisonette is a low-maintenance, budget option but buy with full awareness of the local area profile and likely modernisation costs.
1 bedroom maisonette for sale in Winchester Way, Ipswich, IP2 — £105,000 • 1 bed • 1 bath • 496 ft²
2 bedroom apartment for sale in Bruff Road, Ipswich, IP2 — £125,000 • 2 bed • 1 bath • 679 ft²
2 bedroom maisonette for sale in Lime Tree Place, Ipswich, IP1 — £120,000 • 2 bed • 1 bath • 560 ft²
1 bedroom maisonette for sale in Britannia Road, Ipswich, IP4 — £100,000 • 1 bed • 1 bath • 385 ft²
2 bedroom maisonette for sale in Willoughby Road, Ipswich, IP2 — £95,000 • 2 bed • 1 bath • 851 ft²
2 bedroom maisonette for sale in Stevenson Road, Ipswich, Suffolk, IP1 — £130,000 • 2 bed • 1 bath • 555 ft²


































