**Standout Features:**
- Chain-free semi-detached home
- 2 well-proportioned double bedrooms with ensuite in the master
- Generous off-street parking for up to 3 vehicles
- South-facing, low-maintenance garden with patio and decking
- Upgraded kitchen with integrated appliances
- High Energy Performance Certificate (EPC - B)
- Located in the desirable Thornbury neighborhood
- Potential for extension (subject to planning)
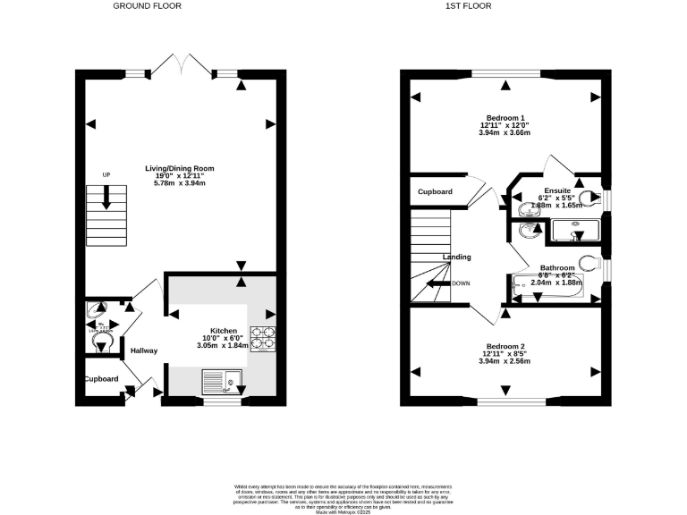
This contemporary semi-detached home offers a perfect blend of comfort and potential, ideal for first-time buyers or small families. With 68 square meters of thoughtfully designed living space, you’ll enter into a welcoming hallway that leads to a modern kitchen equipped with integrated appliances, including a washing machine and dishwasher. The expansive open-plan living/dining area features bi-fold doors that seamlessly connect to a beautifully landscaped south-facing garden, providing an excellent space for relaxation and entertaining.
Upstairs, enjoy two spacious double bedrooms, including a master suite with an ensuite shower, fitted wardrobes, and exclusive storage solutions. This property has been meticulously maintained and still boasts four years on the NHBC warranty, ensuring peace of mind for future homeowners.
Situated in Thornbury, you're within close proximity to top-rated schools, vibrant local shops, and amenities, not to mention easy access to Bristol via the A38 and local transport links. With no chain and excellent potential for further development (subject to planning), this home is a rare find that won't last long—secure your viewing today and imagine your future here!
2 bedroom semi-detached house for sale in Thresher Close, Thornbury, BS35 — £300,000 • 2 bed • 2 bath • 732 ft²
4 bedroom semi-detached house for sale in Haybob Road, Bristol, BS35 — £425,000 • 4 bed • 3 bath • 1475 ft²
4 bedroom link detached house for sale in Jubilee Drive, Thornbury, BS35 — £550,000 • 4 bed • 2 bath • 1839 ft²
4 bedroom detached house for sale in Swallow Park, Thornbury, BS35 — £435,000 • 4 bed • 2 bath • 1460 ft²
4 bedroom detached house for sale in Harvest Way, Brisol, BS35 — £519,000 • 4 bed • 1 bath • 722 ft²
3 bedroom semi-detached house for sale in Severn View Road, Thornbury, BS35 — £300,000 • 3 bed • 2 bath • 1096 ft²


























































































