- Detached three-bedroom family home with media wall sitting room
- Planning granted for significant two-storey rear and side extensions
- Generous enclosed gardens, patio, driveway and single garage
- Close to Burley train station and outstanding local primary schools
- Freehold, mains gas boiler and double glazing (install date unknown)
- Modest overall size ~792 sq ft; internal space is compact
- Single family bathroom only
- Property from 1967–75; may require modernisation in places
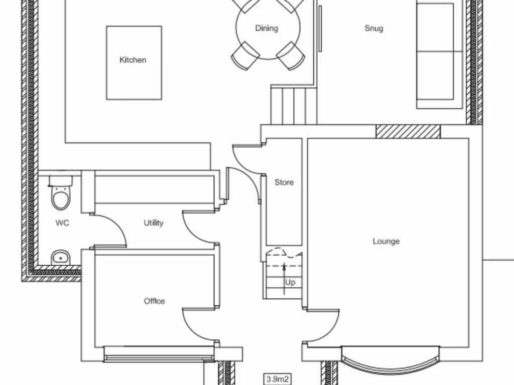
Set on a sought-after street in Burley in Wharfedale, this detached three-bedroom home combines immediate comfort with clear potential. The existing layout offers a bright sitting room with a media wall, an open-plan dining kitchen and utility, and a recently refitted family bathroom — ready for family life from day one.
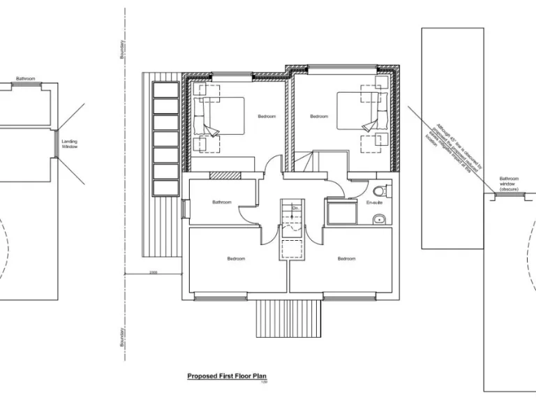
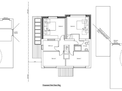
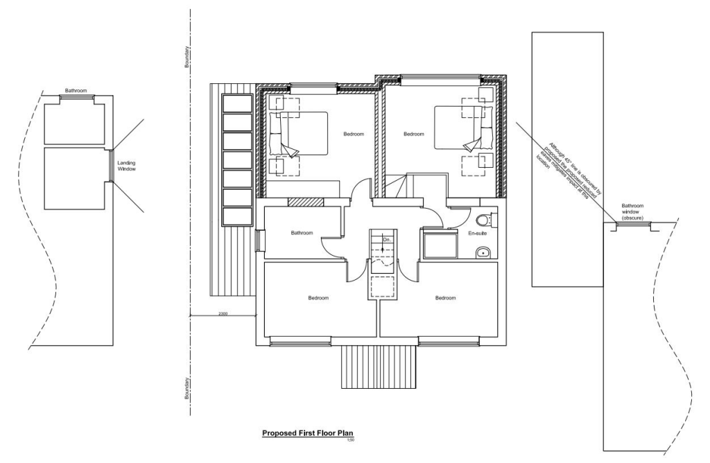
A major draw is the granted planning permission for a two-storey rear extension, single-storey side extension and porch (clients pending final confirmation). That approved scope gives a buyer clear scope to enlarge living space and future-proof the house for a growing family. Outside, generous enclosed gardens, a paved patio seating area, driveway and single garage provide private outdoor space and practical parking.
Practicalities are straightforward: freehold tenure, mains gas boiler with radiators, double glazing, very low local crime and excellent transport links with the train station nearby. The property sits within strong school catchments and an affluent, low-deprivation area — attractive for families wanting village life with easy commutes to Leeds.
Buyers should note the property’s modest overall internal size (approximately 792 sq ft) and that there is a single family bathroom. The house dates from the late 1960s–1970s and, while well presented, may benefit from some updating depending on buyer tastes. Planning is granted but the seller is pending final notification to confirm the plans are passed.











































































































