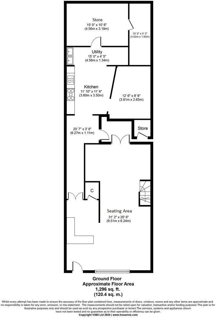
**Investment Highlights:**
- Freehold property located in Selby Town Centre
- Ground floor café with seating, kitchen, utility, and storage areas
- One-bedroom apartment with additional attic room above
- Total area: 2,273 sq ft
- High rental potential with dual-purpose use
- Notable concerns: Very high crime rate in the area; slow broadband speeds
This diverse property presents an exceptional investment opportunity, combining a bustling café on the ground floor with a one-bedroom living accommodation above. Ideally situated in the heart of Selby Town Centre, the café is designed for functionality with a modern seating area, a well-equipped kitchen, and ample utility and storage space. The first floor hosts the apartment, perfect for a live-work arrangement, while the attic room offers additional flexibility for storage or potential rental income.
Though the area experiences a high crime rate and slow broadband, the property's location benefits from strong mobile signal coverage and proximity to various amenities. With room for expansion or renovation, this gem is perfect for investors looking to capitalize on both commercial and residential aspects. Schedule a viewing soon—this opportunity won't last long!
Commercial property for sale in Gowthorpe, Selby, YO8 — £135,000 • 1 bed • 1 bath • 860 ft²
High street retail property for sale in Finkle Street, Selby YO8 4DT, YO8 — £159,000 • 1 bed • 1 bath • 1231 ft²
Commercial property for sale in Vacant Unit, North Yorkshire, YO8 — £162,500 • 1 bed • 1 bath • 797 ft²
Property for sale in The Crescent, Selby, YO8 — £450,000 • 1 bed • 1 bath • 1431 ft²
2 bedroom property for sale in New Street, Selby, YO8 — £135,000 • 2 bed • 2 bath • 355 ft²
Plot for sale in Turners Square, Selby, North Yorkshire, YO8 — £950,000 • 8 bed • 6 bath • 549 ft²














































