**Standout Features:**
- Semi-detached modern townhouse
- Three bedrooms, including a master en-suite
- Bright open-plan kitchen/diner with integrated appliances
- Low-maintenance south-west facing garden with decked area
- Garage with electric car charging point and off-road parking
- Chain-free and located in a very low crime area
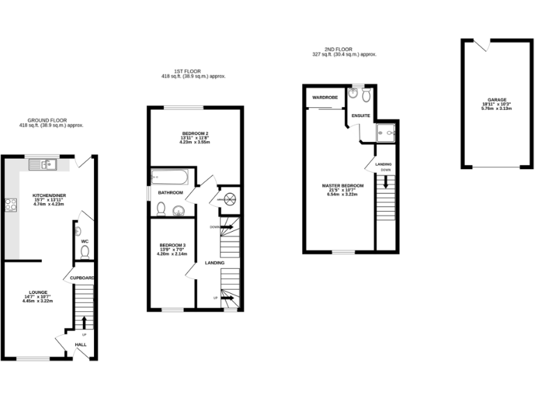
**Property Summary:**
Discover comfort and modern living in this appealing three-storey semi-detached townhouse located in the tranquil Seabrook Orchards development, ideally situated between Topsham and Exeter. This home features an inviting entrance hall that leads to a light-filled lounge and a contemporary kitchen/diner, perfect for family gatherings. A discreet downstairs cloakroom adds convenience, while the first floor is home to two generous bedrooms and a family bathroom. Ascend to the second floor for the master suite, boasting an en-suite bathroom and extensive storage.
The well-designed exterior includes a small yet attractive garden with a decked area for relaxation and outdoor dining, alongside a garage equipped with power and lighting, plus an electric car charging point. While the property provides an average-sized living space suited well for family life, it also offers potential for personalization and future growth. This chain-free home is an excellent opportunity for families and first-time buyers alike to own a slice of suburban comfort in a promising area. With fast broadband, excellent mobile signal, and a low crime rate, it’s time to envision your future here before it’s gone!
3 bedroom semi-detached house for sale in Ferryman Way, Seabrook Orchards, EX2 — £375,000 • 3 bed • 2 bath • 1109 ft²
4 bedroom semi-detached house for sale in Merchant Row, Exeter, EX2 — £500,000 • 4 bed • 3 bath • 1808 ft²
3 bedroom semi-detached house for sale in Anchor Row, Exeter, EX2 — £425,000 • 3 bed • 2 bath • 1498 ft²
2 bedroom semi-detached house for sale in Dart Avenue, Seabrook Orchards, Exeter, EX2 — £335,000 • 2 bed • 2 bath • 897 ft²
3 bedroom semi-detached house for sale in Dart Avenue, Exeter, EX2 — £425,000 • 3 bed • 2 bath • 930 ft²
3 bedroom semi-detached house for sale in Market Mews, Exeter, EX2 — £325,000 • 3 bed • 2 bath • 872 ft²










































































































