Village-centre two-bed with garden, summer house and elevated valley views.
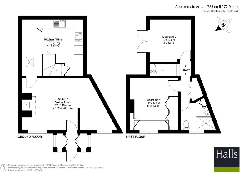
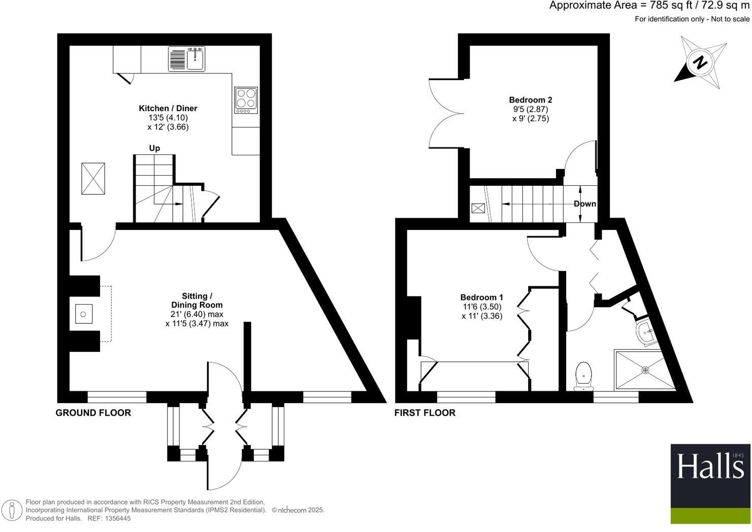
2 double bedrooms in a well-presented period cottage
Character sitting room with feature fireplace and good natural light
Rear terraced garden with lawn, mature planting and summer house
Compact footprint — modest internal space, suited to small household
Stone walls likely uninsulated — consider thermal upgrade potential
Heating details inconsistent (electric boiler listed; services mention oil) — verify
Excellent mobile signal and fast broadband; low flood risk and low crime
Very small plot and area classified as very deprived — local economy considerations
This attractive two-bedroom stone cottage combines period character with contemporary presentation, offering a cosy sitting/dining room, fitted kitchen and modern bathroom across two floors. The house is well-suited to a small family, couple or first-time buyer seeking village life in the Tanat Valley, with local shops, school and pubs all within walking distance.
Outside, a compact but pleasant terraced garden rises behind the cottage with lawns, mature planting and pathways. A recently installed summer house at the top of the plot enjoys elevated views across the village and provides a useful extra space for hobbies or quiet relaxation. The front garden is sheltered and planted for seasonal interest.
Practical points to note: the property is a freehold, pre-1900 stone-built cottage with double glazing. Walls are stone with no assumed insulation, and the plot is very small. Heating is recorded inconsistently in the paperwork (main listing shows electric boiler and radiators; services text references an oil-fired system), so buyers should verify the installed heating fuel and service history. Council tax is low and mobile signal and broadband are good, but the wider area is classified as very deprived, despite low local crime.
Overall this is a characterful village cottage offering immediate comfort and scope to personalise. It will particularly suit buyers wanting a manageable, character property near countryside and village amenities, while those seeking larger gardens or modern thermal efficiency should expect some retrofit work.
2 bedroom cottage for sale in Glyn Ceiriog, LL20 — £265,000 • 2 bed • 2 bath • 819 ft²
3 bedroom terraced house for sale in Llangynog, Oswestry, Powys, SY10 — £295,000 • 3 bed • 1 bath • 1001 ft²
1 bedroom end of terrace house for sale in Park Street, Llanrhaeadr Ym Mochnant, Oswestry, Powys, SY10 — £105,000 • 1 bed • 1 bath • 386 ft²
2 bedroom cottage for sale in Llangynog, SY10 — £375,000 • 2 bed • 1 bath • 1055 ft²
4 bedroom cottage for sale in High Street, Glyn Ceiriog, Llangollen, LL20 — £340,000 • 4 bed • 2 bath • 1303 ft²
2 bedroom link detached house for sale in Quarry Road, Glyn Ceiriog, LL20 — £165,000 • 2 bed • 1 bath • 944 ft²


































































































