Turnkey three-bed home with modern master suite and private garden.
Completely renovated throughout — new kitchen, bathrooms, flooring and finishes
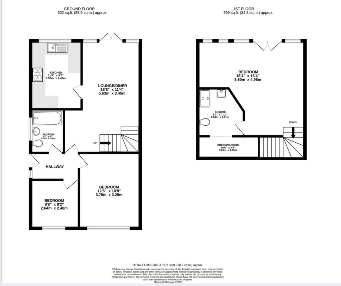
A thoughtfully renovated three-bedroom bungalow extended to provide a light, modern home across two levels. The property is move-in ready with a new kitchen, bathrooms, flooring and a striking master suite on the newly created first floor featuring a dressing area, en-suite shower and Juliette balcony overlooking the garden. The ground floor offers two bedrooms and a family bathroom, plus a bright lounge/diner with doors onto the rear garden.
Practical features include off-street parking, a low-maintenance front area and a private rear garden with lawn and patio. The house is freehold, chain-free and approximately 971 sq ft, offering an efficient layout for families or downsizers who want low-maintenance coastal living close to St Mary’s Bay beach and local amenities.
Notable considerations: the plot is small and room sizes are generally small-to-medium, reflecting the property’s mid-20th-century origins despite the contemporary refit. The wider local area shows higher deprivation and a profile of social renters, and broadband speeds are average — factors buyers should weigh alongside the home’s low crime, excellent mobile signal and very low flood risk.
Priced at £350,000, this property suits buyers seeking a turnkey, low-maintenance coastal home with modern finishes and immediate availability.
 4 bedroom detached house for sale in Seaway Gardens, Romney Marsh, TN29 — £575,000 • 4 bed • 2 bath • 1372 ft²
 4 bedroom detached house for sale in Seaway Gardens, Romney Marsh, TN29 — £575,000 • 4 bed • 2 bath • 1372 ft² 3 bedroom bungalow for sale in Links Crescent, St. Marys Bay, Romney Marsh, Kent, TN29 — £280,000 • 3 bed • 1 bath • 771 ft²
 3 bedroom bungalow for sale in Links Crescent, St. Marys Bay, Romney Marsh, Kent, TN29 — £280,000 • 3 bed • 1 bath • 771 ft² 3 bedroom bungalow for sale in Coast Drive, Greatstone, New Romney, TN28 — £400,000 • 3 bed • 2 bath • 881 ft²
 3 bedroom bungalow for sale in Coast Drive, Greatstone, New Romney, TN28 — £400,000 • 3 bed • 2 bath • 881 ft² 3 bedroom detached house for sale in Dunstall Gardens, St. Marys Bay, Romney Marsh, Kent, TN29 — £425,000 • 3 bed • 2 bath
 3 bedroom detached house for sale in Dunstall Gardens, St. Marys Bay, Romney Marsh, Kent, TN29 — £425,000 • 3 bed • 2 bath 3 bedroom detached house for sale in Seaway Road, St. Marys Bay, TN29 — £350,000 • 3 bed • 1 bath • 814 ft²
 3 bedroom detached house for sale in Seaway Road, St. Marys Bay, TN29 — £350,000 • 3 bed • 1 bath • 814 ft² 2 bedroom semi-detached bungalow for sale in Elm Road, St. Marys Bay, TN29 — £250,000 • 2 bed • 1 bath • 722 ft²
 2 bedroom semi-detached bungalow for sale in Elm Road, St. Marys Bay, TN29 — £250,000 • 2 bed • 1 bath • 722 ft²










































































































