Spacious former workshop with planning history and strong redevelopment potential.
Large single-storey industrial unit with very large overall site
A substantial single-storey former workshop on an extensive coastal plot offers clear redevelopment upside. The site previously held planning permission (ref 07/P/1/0008) to convert and extend the building into a four‑bedroom house; that consent has lapsed but demonstrates past local authority support for change of use. High internal ceilings and a large open-plan footprint create flexible options for residential conversion, creative commercial uses, or storage and showroom space.
The building is solid but requires significant work: signs of damp and mould in places, and the interior is a basic industrial finish needing refurbishment for most alternative uses. Services are connected (mains water and electric; SP Energy Networks), mobile signal is excellent, and the freehold tenure simplifies acquisition. Average broadband and the property’s location in a very deprived, ageing rural community are material considerations for residential end-users and rental demand.
Buyers should view this as a project with potential rather than a turnkey investment. The lapsed planning history reduces some entitlement risk but any new scheme will require fresh permissions. For an investor or developer willing to fund refurbishment and navigate planning, the combination of size, coastal setting, garage parking and flexible layout could deliver strong added value.
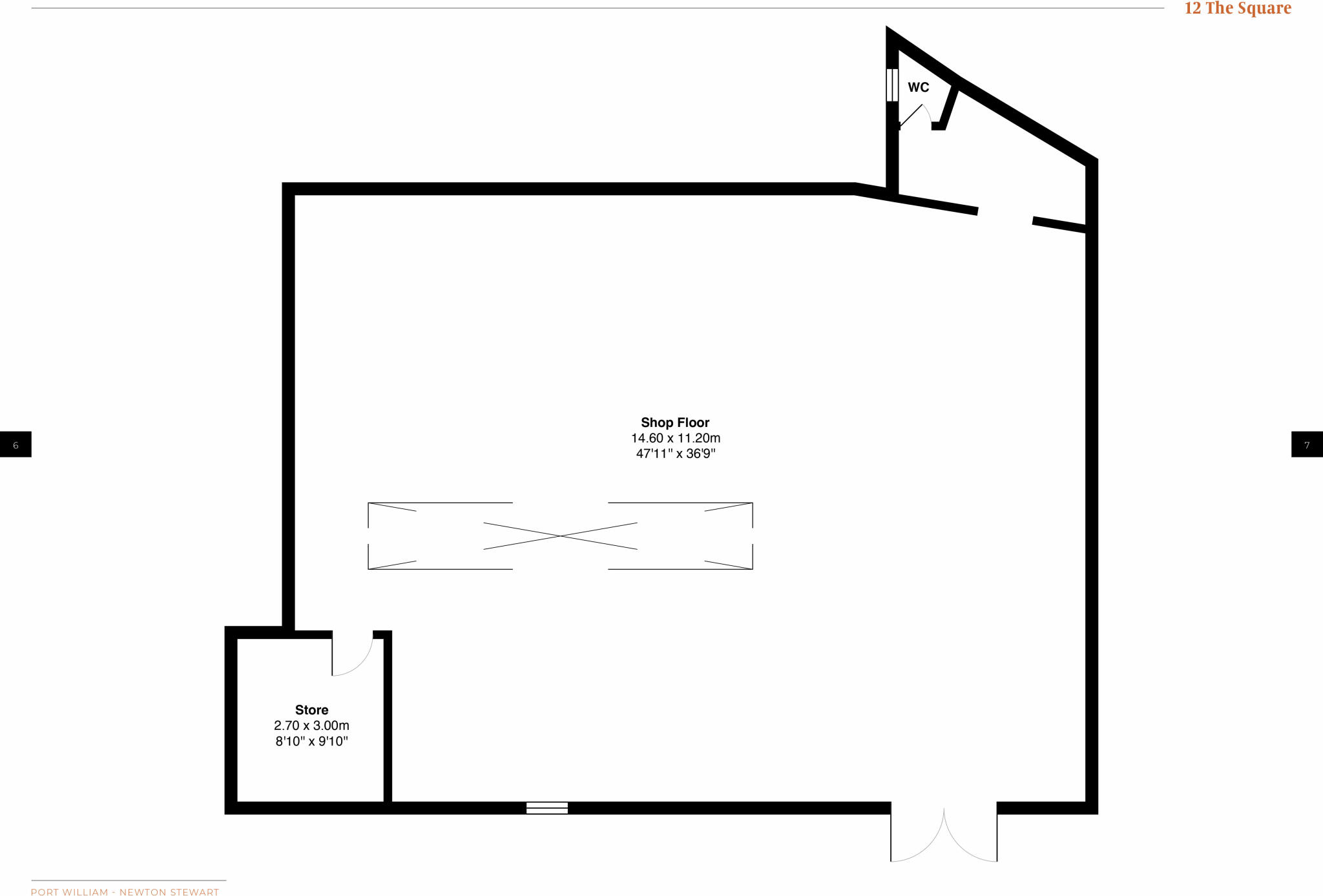
Commercial property for sale in 12 The Square, Port William, Newton Stewart, DG8 9SE, DG8 — £90,000 • 1 bed • 1 bath • 1776 ft²
Hotel for sale in The Square, Port William, DG8 — £260,000 • 1 bed • 1 bath
3 bedroom mixed use property for sale in Auldkirk, Church Street, Port William, Newton Stewart, Wigtownshire, DG8 — £120,000 • 3 bed • 2 bath • 1587 ft²
4 bedroom detached house for sale in High Street, Port William, DG8 — £380,000 • 4 bed • 2 bath • 3143 ft²
3 bedroom terraced house for sale in 2 Mount Pleasant, Port William, DG8 9SN, DG8 — £115,000 • 3 bed • 1 bath • 1096 ft²
2 bedroom semi-detached house for sale in Bowling Green Road, Port William, DG8 — £90,000 • 2 bed • 1 bath • 870 ft²






































































