Characterful two-bedroom terrace with garden and easy transport links.
Victorian mid-terrace with bay windows and historic red brick
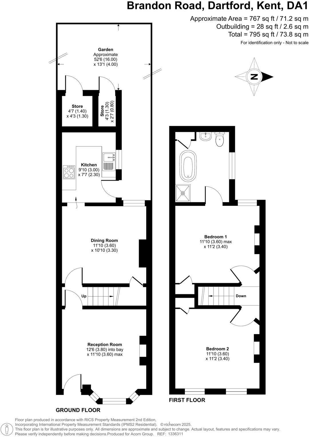
This Victorian mid-terrace combines period character with modern living across two sizeable bedrooms and one family bathroom. The living space totals about 767 sqft, with original red brick exterior and bay windows that give the house its historic charm.
A lovely rear garden and on-street parking without a permit make day-to-day life straightforward. The property is freehold and sits close to shops, schools and strong transport links, suiting commuters and first-time buyers wanting convenient access to Dartford town centre.
Practical considerations: the property carries an EPC rating of D and the original solid brick walls are likely uninsulated. Crime levels in the area are above average, the plot is small and some cosmetic updating or insulation work may be needed to improve energy efficiency and comfort.
Overall, this home offers an affordable route into a well-connected area with scope to add value through targeted refurbishment and insulation improvements. Ideal for buyers who want character, garden space and good local amenities within easy reach.
2 bedroom terraced house for sale in Little Queen Street, Dartford, Kent, DA1 — £275,000 • 2 bed • 1 bath • 607 ft²
3 bedroom terraced house for sale in Shenley Road, Dartford, Kent, DA1 — £350,000 • 3 bed • 1 bath • 918 ft²
3 bedroom terraced house for sale in Priory Hill, Dartford, Kent, DA1 — £475,000 • 3 bed • 1 bath • 1174 ft²
3 bedroom end of terrace house for sale in Park Road, Dartford, Kent, DA1 — £450,000 • 3 bed • 2 bath • 1400 ft²
2 bedroom terraced house for sale in Great Queen Street, Dartford, Kent, DA1 — £310,000 • 2 bed • 1 bath • 664 ft²
2 bedroom semi-detached house for sale in Cranford Road, Dartford, Kent, DA1 — £350,000 • 2 bed • 1 bath • 797 ft²


























































































