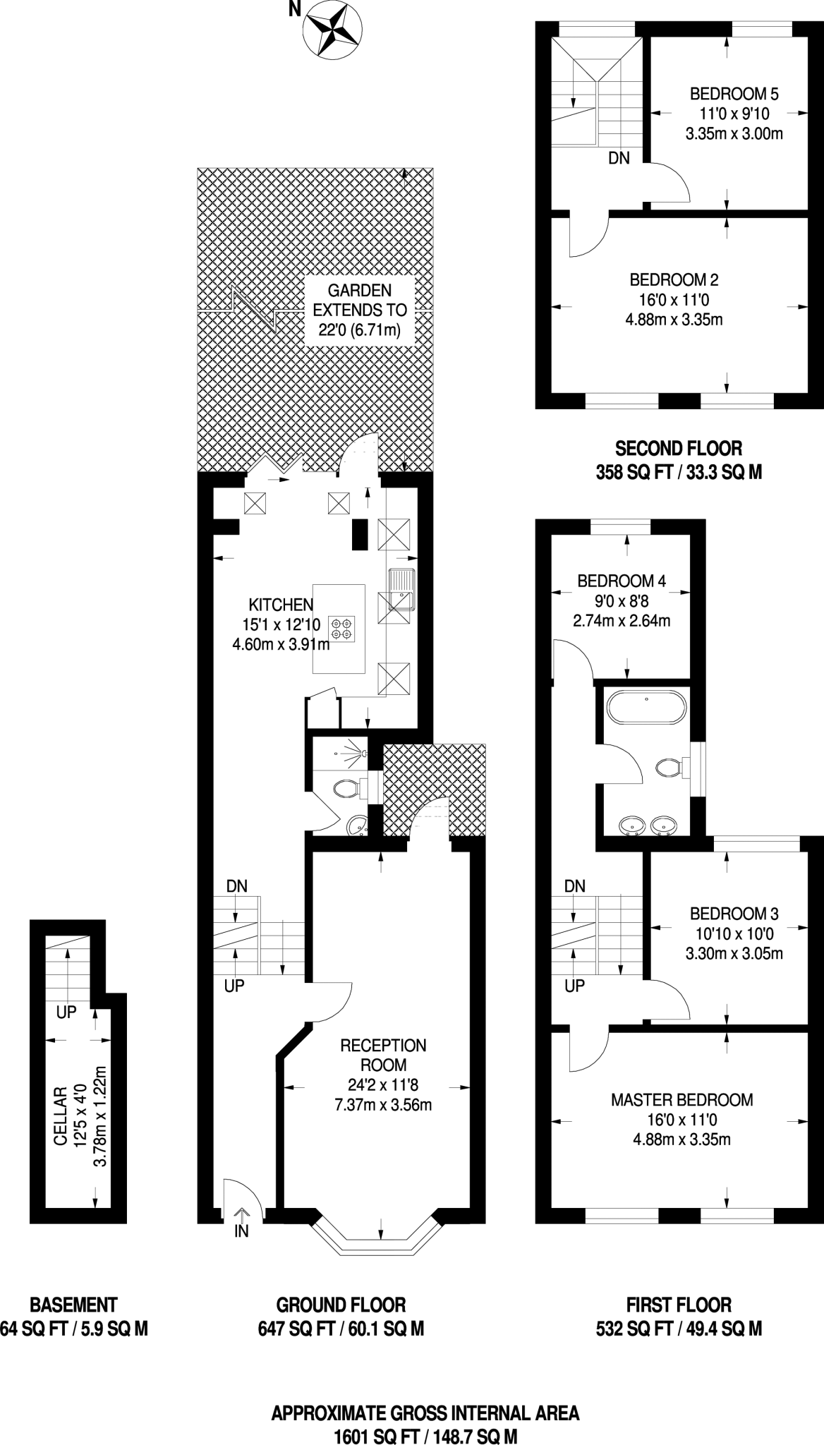
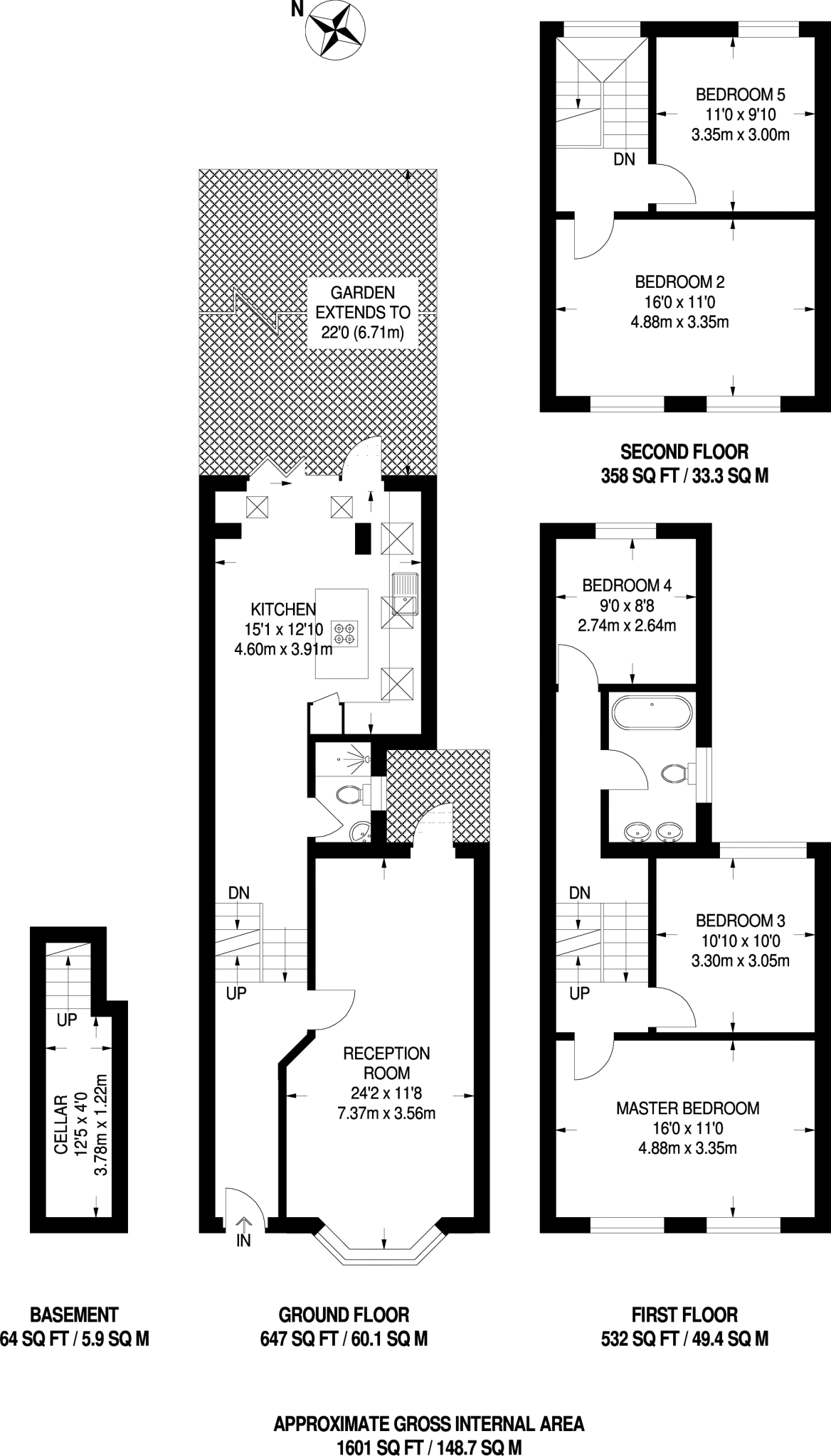
Newly renovated five-bedroom period house near Brixton station, spacious and move-in ready..
Five bedrooms across three storeys, ideal flexible family space
Substantial double reception with high ceilings and bay window
Fully fitted kitchen with island, dining and entertaining layout
Landscaped private garden, small plot size
Two bathrooms (one family bathroom, one shower room) for five bedrooms
Newly renovated throughout; move-in ready condition
Freehold tenure, no flood risk
Area: high crime and local deprivation may affect resale perception
This recently refurbished five-bedroom Victorian terraced house on Dalyell Road blends period character with contemporary living. High ceilings, a substantial double reception and a fully equipped kitchen with island provide generous space for family life and entertaining. The property is freehold and offers a private landscaped garden, bay windows and original features sympathetically retained.
Situated moments from Brixton Underground and a wide range of shops, cafes and amenities, the house suits families who want inner-city convenience. Several local primary and secondary schools have Good Ofsted ratings and are within easy reach. Fast broadband and excellent mobile signal support home working and modern household needs.
Buyers should note material considerations honestly: the house has two bathrooms for five bedrooms, which could be limiting for larger families. The plot is small and the area records higher-than-average crime and deprivation statistics, which may affect long-term resale perceptions. The solid-brick construction shows no historic external insulation (assumed), so heating costs may be higher despite double glazing and a modern gas boiler. Overall, this is a strong option for buyers seeking a move-in-ready period home in a well-connected Brixton location, with realistic expectations about local context and running costs.
5 bedroom house for sale in Dalyell Road, SW9 — £1,225,000 • 5 bed • 2 bath • 1601 ft²
3 bedroom flat for sale in Dalyell Road, Brixton, SW9 — £625,000 • 3 bed • 1 bath • 727 ft²
5 bedroom terraced house for sale in Endymion Road, London, SW2 — £1,300,000 • 5 bed • 2 bath • 1932 ft²
5 bedroom property for sale in Elm Park, London, SW2 — £900,000 • 5 bed • 3 bath • 1358 ft²
5 bedroom terraced house for sale in Andalus Road, London, SW9 — £1,350,000 • 5 bed • 3 bath • 1845 ft²
3 bedroom terraced house for sale in Kildoran Road, London, SW2 — £875,000 • 3 bed • 3 bath • 805 ft²


















































































