G31 2GD - 2 bedroom flat for sale in Flat 1/1, 11 Firpark Court, Denn…

View on Property Piper

2 bedroom flat for sale in Flat 1/1, 11 Firpark Court, Dennistoun , Glasgow, G31

Summary - 1/1, 11, FIRPARK COURT, GLASGOW G31 2GD

2 bed 2 bath Flat

**Key Features:**
- Immaculately presented two-bedroom flat in the desirable Firpark development (built 2007)
- South-facing first floor position with a Juliet balcony overlooking lush gardens
- Impressive B rating for energy efficiency
- Secure, barrier-controlled resident parking and lovely communal gardens
- Located less than 1.5 miles from the city center and University of Strathclyde
- Well-equipped modern kitchen and two bathrooms (one en-suite)

This stunning two-bedroom apartment offers contemporary living in a sought-after location, combining comfort and convenience. As you enter the property, you're greeted by a light-filled open-plan lounge, dining, and kitchen area where sliding French doors lead to a charming south-facing Juliet balcony. The modern kitchen features ample storage and integrated appliances, perfect for entertaining. Both spacious bedrooms come equipped with built-in wardrobes, while the principal room benefits from an en-suite.

Situated in the vibrant G31 postcode, this flat is ideally placed for access to local amenities, parks, and excellent transport links to both Glasgow and beyond. Not only is this investment ideal for first-time buyers or families seeking a stylish home, but its energy efficiency and low council tax are attractive for those conscious of future costs. With its immaculate presentation and prime location, this property won't last long in today's market—claim your slice of urban living today!

Property Details

Image Descriptions

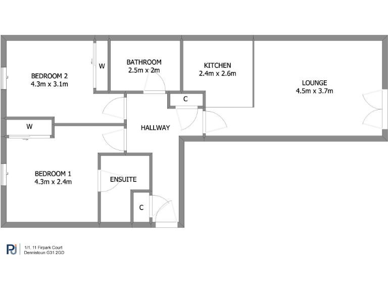
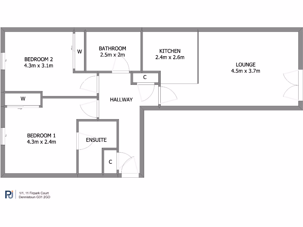
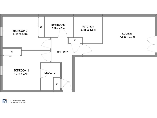
Floorplan Description

Rooms

Textual Property Features

Detected Visual Features

Nearest Bars And Restaurants

,,,,}

Nearest General Shops

,,}

Nearest Grocery shops

,,}

Nearest Supermarkets

,,}

Nearest Religious buildings

,,}

Nearest Medical buildings

,,,}

Nearest Airports

,}

Nearest Leisure Facilities

,,,,}

Nearest Tourist attractions

,,}

Nearest Train stations

,,,,}

Nearest Bus stations and stops

,,,,}

Nearest Hotels

,,}

Tags

Local Market Stats

AirBnB Data

Similar Properties

Meta

High Res Images

Compatible Images

Low res Images

Thumbnails

Raw Images

High Res Floorplan Images

Compatible Floorplan Images

Low res Floorplan Images

FloorplanImages Thumbnail

Raw Floorplan Images