Refurbished three-bedroom home with parking and a generous rear garden, walking distance to Colchester centre.
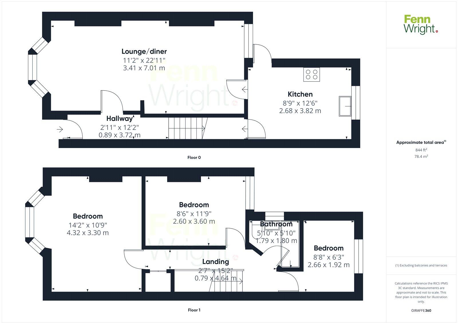
Three bedrooms with through lounge/diner and understairs storage
This refurbished three-bedroom semi offers practical family living a short walk from Colchester city centre. The house combines period features — a bay-fronted façade and solid room proportions — with a modern kitchen and bathroom, ready for immediate occupation and sold with no onward chain.
Highlights include off‑street parking for two cars and a generous rear garden with patio and lawn — useful for children, pets and outdoor entertaining. Internally the layout provides a through lounge/diner, understairs storage and three bedrooms across two storeys, all within an average-sized, comfortable footprint (approx. 844 sq ft).
Buyers should note a single family bathroom and that the property’s cavity walls are assumed uninsulated; the double glazing was installed before 2002. The area records higher-than-average crime levels, so factor in simple security measures. Overall, the home suits first-time buyers or growing families wanting a well-presented, move-in-ready period house with scope to personalise and improve energy performance over time.
3 bedroom semi-detached house for sale in Meyrick Crescent, Colchester, CO2 — £325,000 • 3 bed • 1 bath • 987 ft²
3 bedroom semi-detached house for sale in Constantine Road, Colchester, Essex, CO3 — £375,000 • 3 bed • 1 bath • 975 ft²
3 bedroom semi-detached house for sale in Crown Bays Road, Colchester, Essex, CO4 — £285,000 • 3 bed • 1 bath • 1034 ft²
3 bedroom terraced house for sale in Crown Bays Road, Colchester, Essex, CO4 — £245,000 • 3 bed • 1 bath • 743 ft²
3 bedroom semi-detached house for sale in Port Lane, Colchester, CO1 — £350,000 • 3 bed • 1 bath • 1074 ft²
3 bedroom semi-detached house for sale in King George Road, Colchester, Essex, CO2 — £375,000 • 3 bed • 1 bath • 1188 ft²










































































