Move-in ready home with large garden and easy rail links to London.
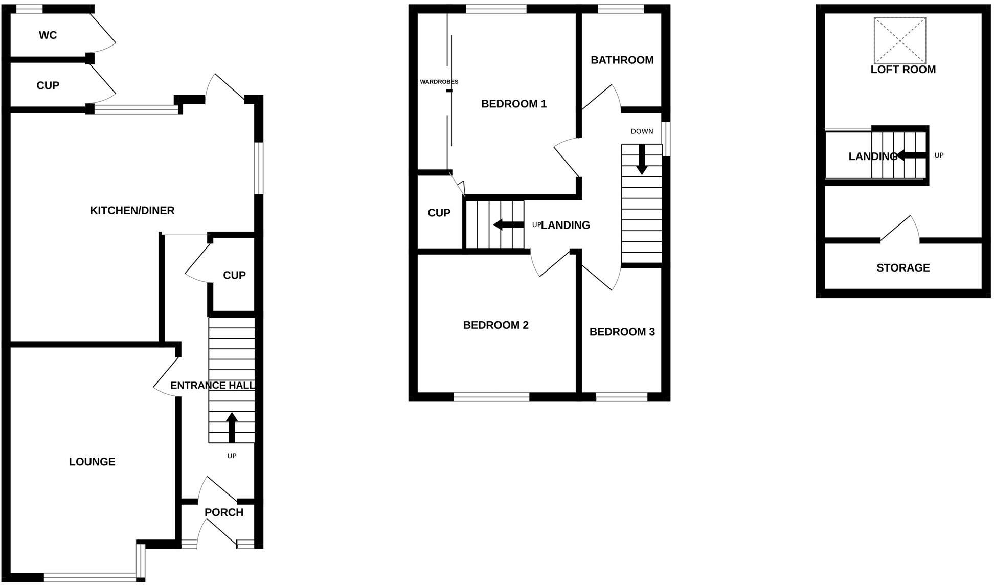
- Three bedrooms plus loft room, accessed via staircase
- Brand new kitchen and redecorated interiors throughout
- Two reception rooms and fitted three-piece bathroom
- Generous enclosed rear garden approximately 70' deep
- Off-road parking via driveway for one vehicle
- EPC rating D; cavity walls with no confirmed insulation
- Located ~1 mile to Clacton town centre and mainline station
- Area shows higher deprivation; consider local market factors
A recently refreshed three-bedroom semi-detached home offering clear move-in condition and practical space for first-time buyers or buy-to-let purchasers. The property features a brand new kitchen, two ground-floor reception rooms and a fitted three-piece bathroom, all laid out across an average-sized footprint (969 sq ft). An additional loft room, accessed by an internal staircase, adds flexible space for a home office or guest room.
Outside, the house benefits from off-road parking and a generous fully enclosed rear garden of approximately 70' — a rare outdoor depth for this plot size. Located about a mile from Clacton town centre and mainline station with direct services to London, the home is within easy reach of local shops, bus routes and several well-rated primary and secondary schools.
Practical details to note: the property is Freehold with Council Tax Band B and an EPC rating of D. Built in the 1930s with cavity walls (no confirmed insulation), and a single main bathroom, some buyers may choose to add insulation or further upgrades to improve energy efficiency. The wider area shows higher levels of deprivation, which may influence resale values and local services.
Overall this is a well-presented, newly renovated semi that suits someone wanting immediate occupation with potential to enhance energy performance and personalise finishes over time.
3 bedroom semi-detached house for sale in Berkeley Road, Clacton on Sea, CO15 — £240,000 • 3 bed • 1 bath
3 bedroom semi-detached house for sale in Melbourne Road, Clacton-On-Sea, CO15 — £280,000 • 3 bed • 1 bath • 743 ft²
3 bedroom semi-detached house for sale in Douglas Road, Clacton-on-Sea, Essex, CO15 — £300,000 • 3 bed • 1 bath • 1388 ft²
3 bedroom semi-detached house for sale in London Road, Great Clacton, CO15 — £210,000 • 3 bed • 1 bath • 865 ft²
3 bedroom semi-detached house for sale in Woodford Close, Clacton-on-Sea, Essex, CO15 — £250,000 • 3 bed • 2 bath • 891 ft²
2 bedroom semi-detached house for sale in Gilders Way, Clacton-On-Sea, Essex, CO16 — £245,000 • 2 bed • 1 bath • 657 ft²










































