RH10 1AT - 1 bedroom flat for sale in Commonwealth Drive, Page Court C…

View on Property Piper

1 bedroom flat for sale in Commonwealth Drive, Page Court Commonwealth Drive, RH10

Summary - Commonwealth Drive, Page Court Commonwealth Drive, RH10 RH10 1AT

1 bed 1 bath Flat

**Standout Features:**

- Spacious one-bedroom top-floor flat
- Generous balcony with potential views
- Underground allocated parking space
- No onward chain for hassle-free acquisition
- Secure entry phone system and lift access
- Bright, open-plan living area with large windows
- Well-equipped fitted kitchen with integrated appliances
- Close proximity to Three Bridges station and Crawley town centre

**Potential Concerns:**
- Average size of 547 sq ft may not suit those needing more space
- Service charge of £3,008 annually
- Crime rate in the area is high

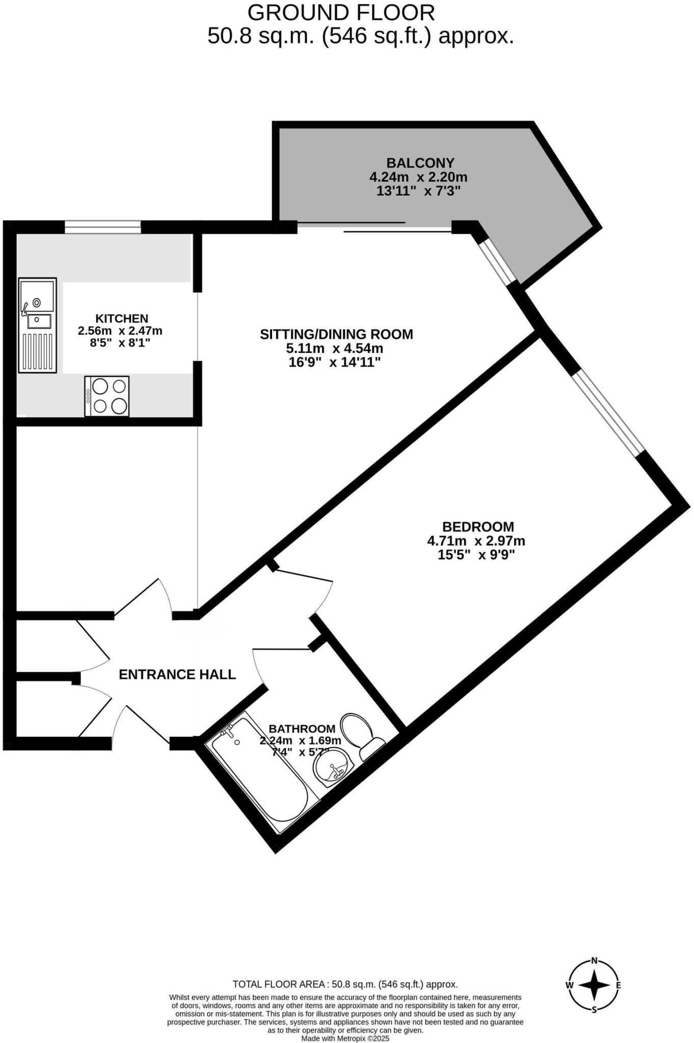
Discover modern urban living in this beautifully presented top-floor flat located within the desirable Pembroke Park development. Spanning approximately 547 sq ft, this well-designed one-bedroom apartment features an expansive open-plan living area flooded with natural light, thanks to its floor-to-ceiling windows. The kitchen is equipped with integrated appliances, creating a seamless transition to a delightful dining experience. Enjoy your morning coffee on the generous balcony, or unwind after a long day overlooking the attractively landscaped communal gardens.

This property is perfect for first-time buyers or investors looking for rental potential, especially with its proximity to Three Bridges mainline train station and Crawley town centre just a short stroll away. With allocated underground parking, accessible transport options, and a "No Onward Chain" offer, this home provides excellent ease of access and convenience. Don’t miss out on this affordable city gem—schedule a viewing today!

Property Details

Brochure Descriptions

Image Descriptions

Floorplan Description

Rooms

Textual Property Features

Detected Visual Features

EPC Details

Nearby Schools

Nearest Bars And Restaurants

,,,,}

Nearest General Shops

,,}

Nearest Grocery shops

,,}

Nearest Supermarkets

,,}

Nearest Religious buildings

,,}

Nearest Medical buildings

,,,}

Nearest Airports

}

Nearest Leisure Facilities

,,,,}

Nearest Tourist attractions

,,}

Nearest Train stations

,,,,}

Nearest Bus stations and stops

,,,,}

Nearest Hotels

,,}

Tags

Local Market Stats

AirBnB Data

Similar Properties

Meta

High Res Images

Compatible Images

Low res Images

Thumbnails

Raw Images

High Res Floorplan Images

Compatible Floorplan Images

Low res Floorplan Images

FloorplanImages Thumbnail

Raw Floorplan Images