Chain-free, characterful city-centre flat with long lease and modern bathroom.
Two double bedrooms with flexible living space
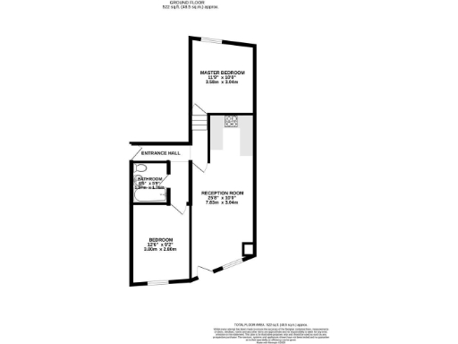
Set within a converted listed building in Stockport Old Town, this chain-free two double bedroom ground-floor apartment offers a large open-plan kitchen/living room and a modern tiled bathroom. At 754 sq ft the layout feels generous for a city-centre flat, with double glazing and gas central heating providing solid everyday comforts.
The property will suit first-time buyers or buy-to-let investors seeking central location and character. The apartment comes with a long lease (approx. 142 years) and below-average service charge, making running costs predictable. There is no flood risk and local crime levels are very low.
Buyers should note material considerations: the building is listed and in a conservation area, which can restrict alterations and may complicate some mortgage or renovation plans. Internal ceiling heights are generally low and some rooms are compact, so check furniture plans before viewing. The surrounding area scores high on deprivation indices — amenities and transport are close by, but the neighbourhood profile may not suit all buyers.
Practical details: tenure is leasehold, service charge £728 (annual), ground rent £125, council tax described as cheap. Anti-money-laundering checks apply on offer acceptance (£30 per applicant). Viewing will reveal the apartment’s quirky character and practical city-centre lifestyle potential.
2 bedroom flat for sale in Mealhouse Brow, Stockport, Greater Manchester, SK1 — £220,000 • 2 bed • 1 bath • 465 ft²
2 bedroom flat for sale in Edward Street, Stockport, Greater Manchester, SK1 — £125,000 • 2 bed • 1 bath • 482 ft²
2 bedroom apartment for sale in Curate Court, Curate Street, Stockport SK1 4AF, SK1 — £165,000 • 2 bed • 1 bath • 412 ft²
2 bedroom flat for sale in Higher Hillgate, Stockport, Greater Manchester, SK1 — £165,000 • 2 bed • 2 bath
1 bedroom flat for sale in Apartment Archer House John Street, HIllgate, SK1 — £115,000 • 1 bed • 1 bath • 504 ft²
1 bedroom flat for sale in Alexandra House, Warren Street, Stockport, SK1 — £175,000 • 1 bed • 1 bath • 467 ft²






































