GL1 5BA - 2 bedroom terraced house for sale in New Street, Gloucester…

View on Property Piper

2 bedroom terraced house for sale in New Street, Gloucester, GL1

Summary - 24 NEW STREET GLOUCESTER GL1 5BA

2 bed 1 bath Terraced

Chain-free Victorian terrace priced for renovation close to Gloucester Quays.
Two double bedrooms upstairs
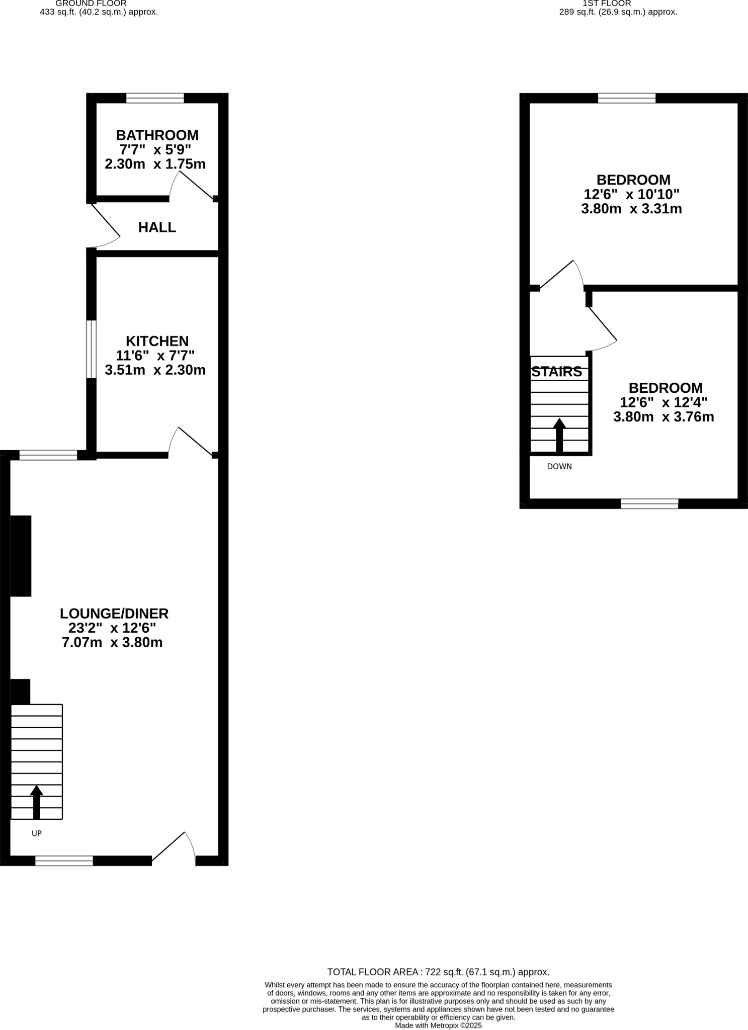
A traditional Victorian mid-terrace offered chain-free and priced for a quick sale. The house has two double bedrooms, a notably large lounge/diner and a rear garden — practical basics for a first home or rental unit. Gas central heating and double glazing are present, though install dates are unknown.

The property requires updating throughout: cosmetic refurbishment and likely insulation improvements are needed to bring the house up to modern comfort and efficiency. The solid brick walls suggest poor wall insulation as-built. EPC D59 and the medium flood risk are important considerations when budgeting works and insurance.

Location is central Gloucester, close to Gloucester Quays and local schools, with on-street parking and fast broadband. The surrounding area has high crime and very high deprivation statistics, so buyers should weigh local safety and long-term resale. Sold freehold at a competitive price, it suits a first-time buyer seeking a starter home or an investor prepared to renovate and manage rental risk.

Property Details

Brochure Descriptions

Image Descriptions

Floorplan Description

Rooms

Textual Property Features

Target Audience

AI Tags

Detected Visual Features

EPC Details

Nearby Schools

Nearest Bars And Restaurants

,,,,}

Nearest General Shops

,,}

Nearest Grocery shops

,,}

Nearest Supermarkets

,,}

Nearest Religious buildings

,,}

Nearest Medical buildings

,,,}

Nearest Leisure Facilities

,,,,}

Nearest Tourist attractions

,,}

Nearest Train stations

,,,,}

Nearest Bus stations and stops

,,,,}

Nearest Hotels

,,}

Tags

Local Market Stats

AirBnB Data

Similar Properties

Meta

High Res Images

Compatible Images

Low res Images

Thumbnails

Raw Images

High Res Floorplan Images

Compatible Floorplan Images

Low res Floorplan Images

FloorplanImages Thumbnail

Raw Floorplan Images