Income-producing urban asset with clear active-management upside for investors.
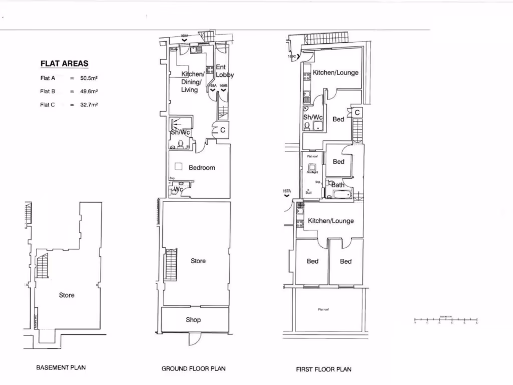
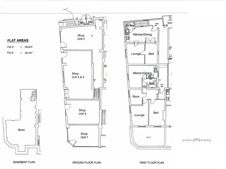
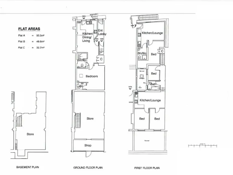
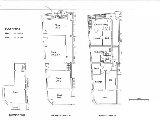
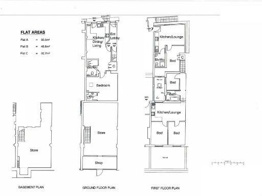
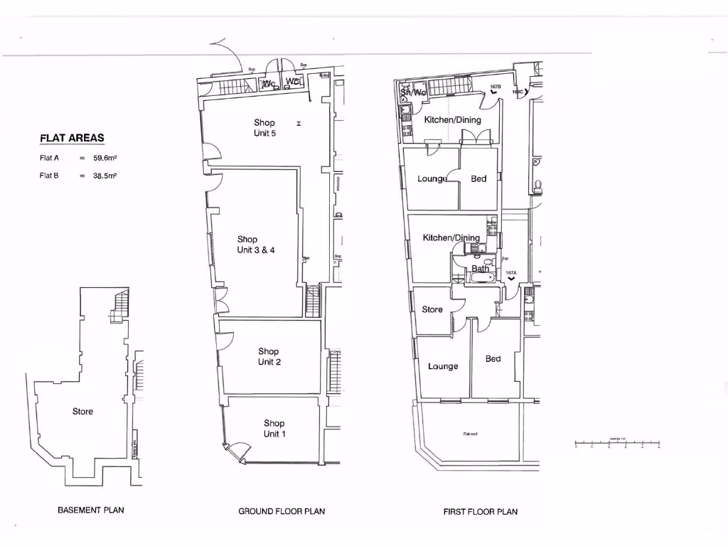
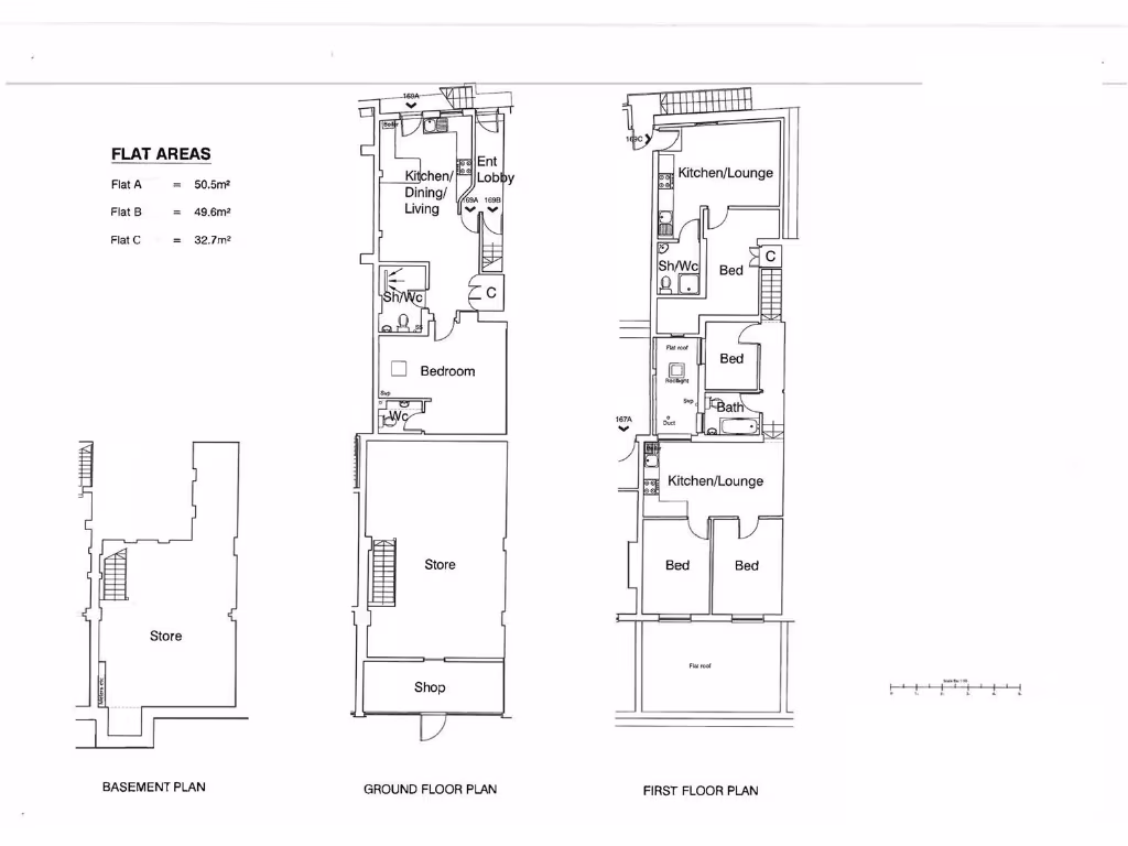
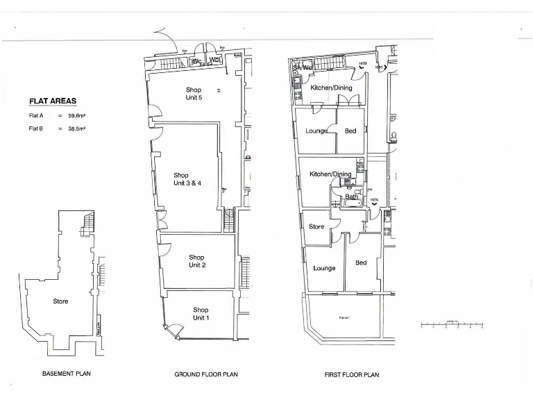
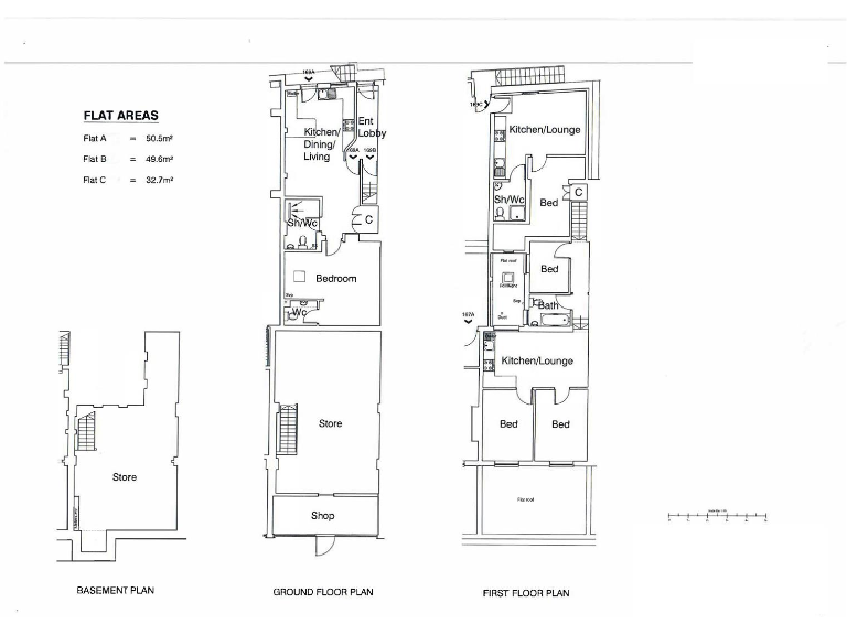
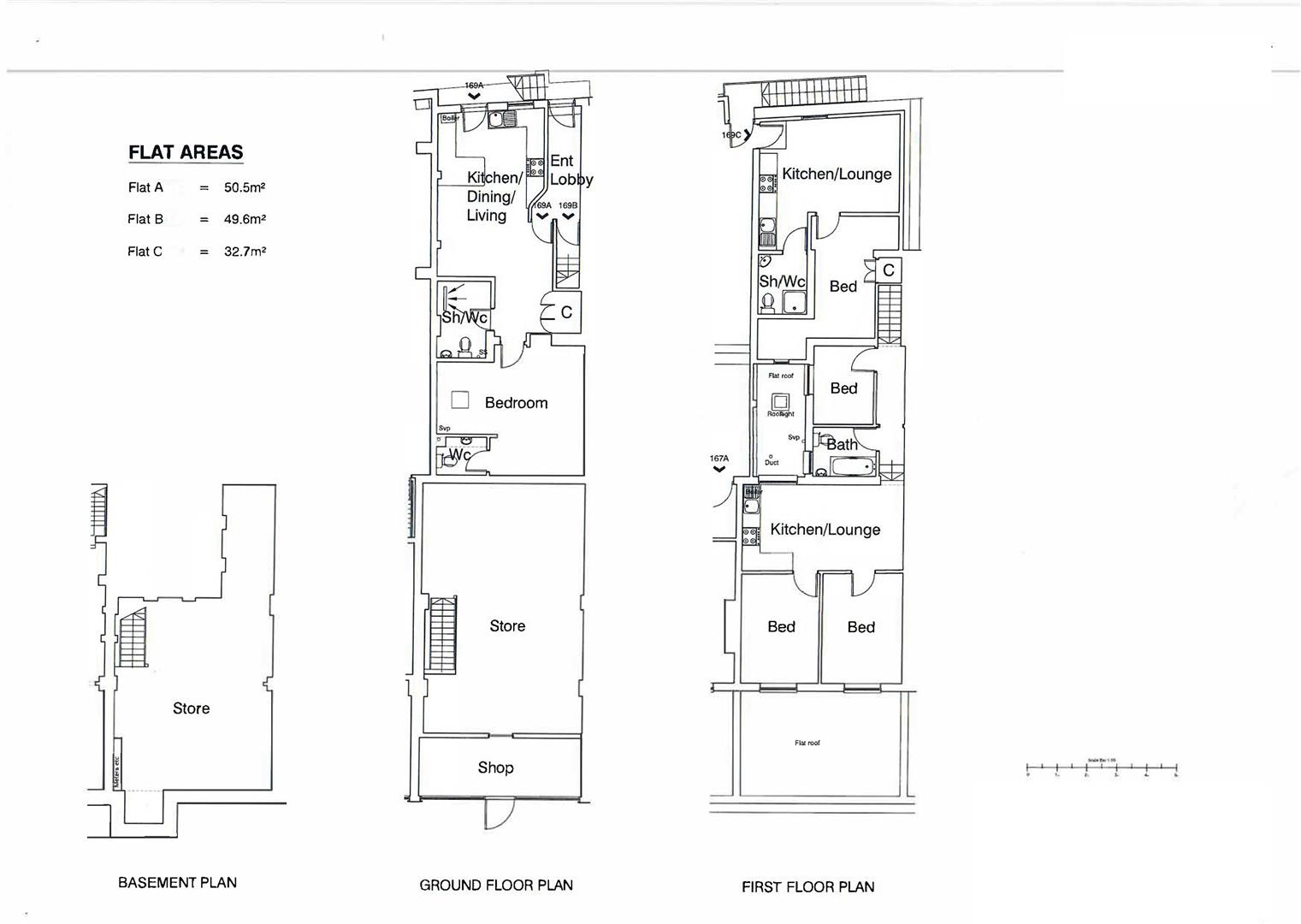
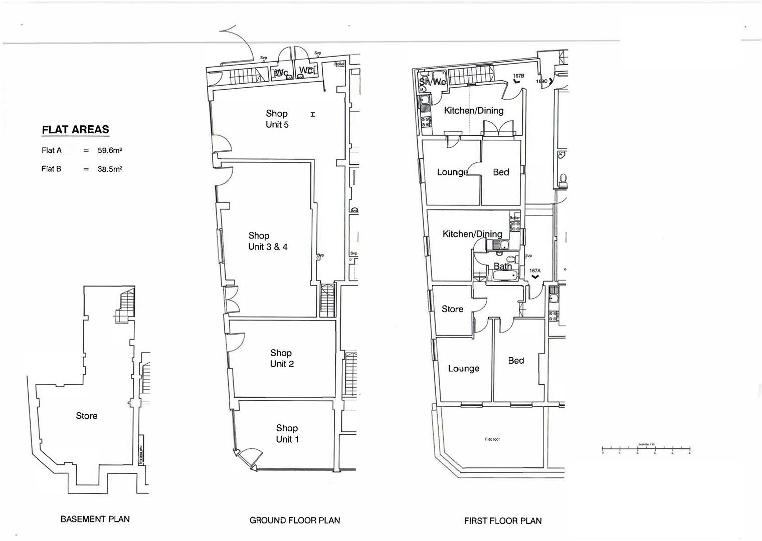
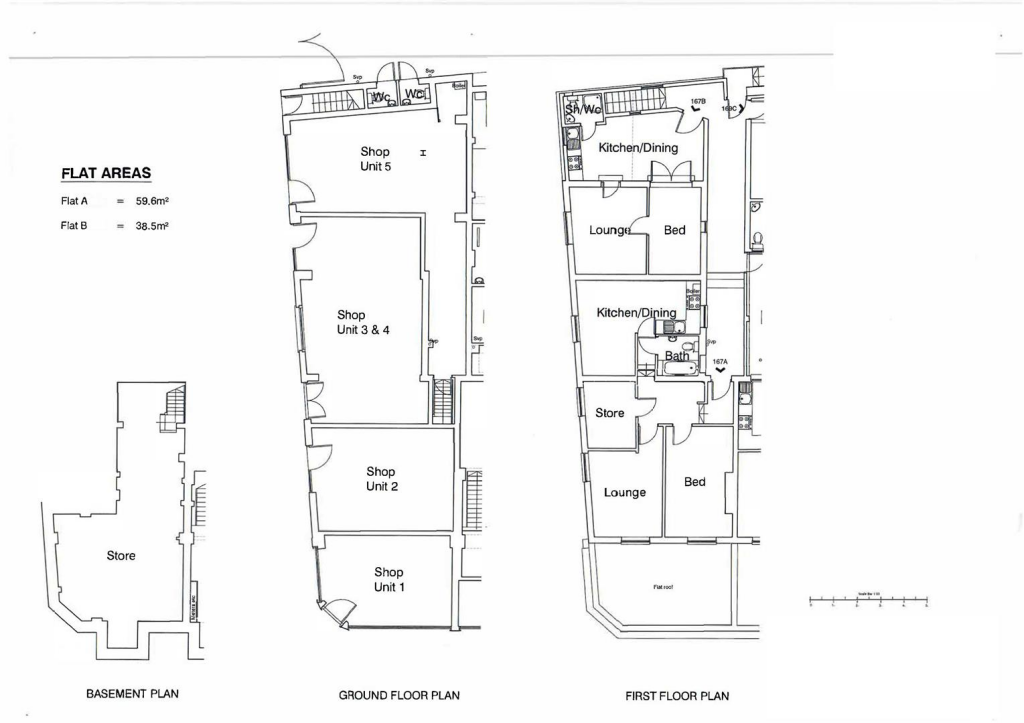
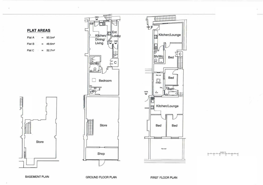
6,064 sq ft corner freehold across basement, ground, first floors|Over £245,000 annual income from commercial and residential tenancies|6 commercial units and 5 residential flats (3x1-bed, 2x2-bed)|Fully occupied with legal tenant agreements in place|Corner plot with dual street frontage and redevelopment potential|Area classified as deprived with very high local crime rates|Small rear/service area; limited external space for expansion|Further enlargement requires planning permission
A rare freehold investment comprising two adjoining mixed‑use buildings on a prominent Ilford Lane corner, producing in excess of £245,000 pa from six commercial units and five residential flats. The asset is fully occupied with legal agreements in place, delivering immediate rental income and multiple frontage lines to two streets.
The 6,064 sq ft footprint is arranged over basement, ground and first floors and currently offers clear scope for rental growth or reconfiguration. Planning permission would be required for any enlargement or material change of use, but the corner plot and existing mix of shops and flats make this suitable for portfolio expansion or a hold-for-income purchase.
Buyers should note the local context: the area is classified as deprived with very high crime indicators and a small rear plot size. These factors can affect resale and lettings in some tenant segments but are reflected in the yield opportunity for investors able to manage multi‑tenanted urban stock.
Overall this is a cash‑producing, multi‑unit freehold with upside through active asset management or planning‑led change, best suited to experienced buy‑to‑let investors or funds comfortable working in high‑density urban locations.
Convenience store for sale in Cranbrook Road, Ilford, IG6 — £925,000 • 1 bed • 1 bath • 2352 ft²
Mixed use property for sale in Barking Road, , Plaistow, E13 — £1,650,000 • 1 bed • 1 bath • 5543 ft²
Commercial property for sale in 794 Green Lane, Dagenham, London, RM8 — £500,000 • 2 bed • 1 bath • 1532 ft²
5 bedroom semi-detached house for sale in Wellesley Road, Ilford, Essex, IG14JX, IG1 — £820,000 • 5 bed • 3 bath • 1181 ft²
High street retail property for sale in 395, 397 & 397A Eastern Avenue, Gants Hill, IG2 6LR, IG2 — £1,250,000 • 1 bed • 1 bath • 4106 ft²
Shop for sale in Becontree Avenue, Dagenham, Essex, RM8 — £500,000 • 1 bed • 1 bath • 2239 ft²


















