Strategic A414 frontage with outline B1/B2/B8 permission for commercial use.
- Freehold land from 1.05 to 6.30 acres available
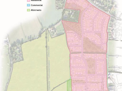
This large, freehold development opportunity offers between 1.05 and 6.30 acres (0.42–2.54 ha) with main road frontage to Maldon Road (A414). The site sits within a major residential-led expansion (Wycke Hill) and benefits from outline planning permission for B1, B2 and B8 uses (Maldon District Council Ref: OUT/MAL/14/01103), giving flexibility for light industrial, general industrial or storage/distribution schemes.
Vehicular access from Maldon Road has already been constructed and services (electricity, water, sewage) are due to be provided to the site, although individual parcels are not yet connected. The land is mostly level and previously undeveloped, presenting a straightforward platform for further design and infrastructure work. Flood risk is recorded as No Risk.
Available as individual freehold parcels from 1.05 acres or as combined parcels up to 6.30 acres, the site suits developers, occupiers or investors seeking a sizeable, well-located plot with strategic road links to the A12 and nearby industrial estates. Offers conditional on detailed planning or unconditional will be considered.
Known constraints and practicalities are clear: outline consent only (detailed consent required), services are provided to site but not connected to each parcel, and the immediate area records higher crime statistics. Buyers should also note VAT applies to prices and that standard legal costs are borne by each party. Prospective purchasers are advised to commission their own due diligence on rates, connectivity and planning strategy.
Land for sale in Land For Sale, Maldon Road, Burnham On Crouch, Essex, CM0 8NS, CM0 — POA • 1 bed • 1 bath
Land for sale in Land At London Road, London Road, Maldon, CM9 6HW, CM9 — POA • 1 bed • 1 bath
Light industrial facility for sale in Plot 20 Gershwin Park, Gershwin Boulevard, Witham, CM8 1FQ, CM8 — POA • 1 bed • 1 bath
Land for sale in Land North of Church Road, Wickham Bishops, CM8 — £7,500,000 • 1 bed • 1 bath
Land for sale in Land At Morbec Farm, Arterial Road, Wickford, Essex, SS12 — £1,500,000 • 1 bed • 1 bath • 7979 ft²
Light industrial facility for sale in Burnham Road, Mundon, Maldon, CM9 6NT, CM9 — POA • 1 bed • 1 bath






