**Standout Features:**
- 3 Bedrooms, 2 Reception Rooms
- Detached garage and driveway
- Enclosed large rear garden
- Double glazing installed post-2002
- Excellent commuter links and proximity to respected schools
- No onward chain, providing immediate availability
**Potential Concerns:**
- Requires significant renovation and repairs
- May present damp issues in areas needing work
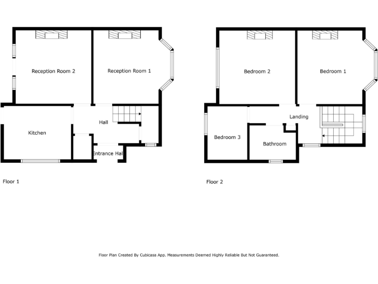
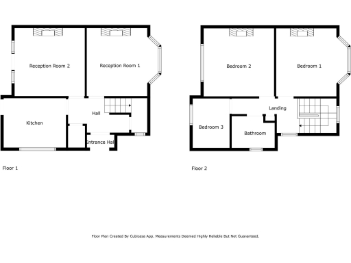
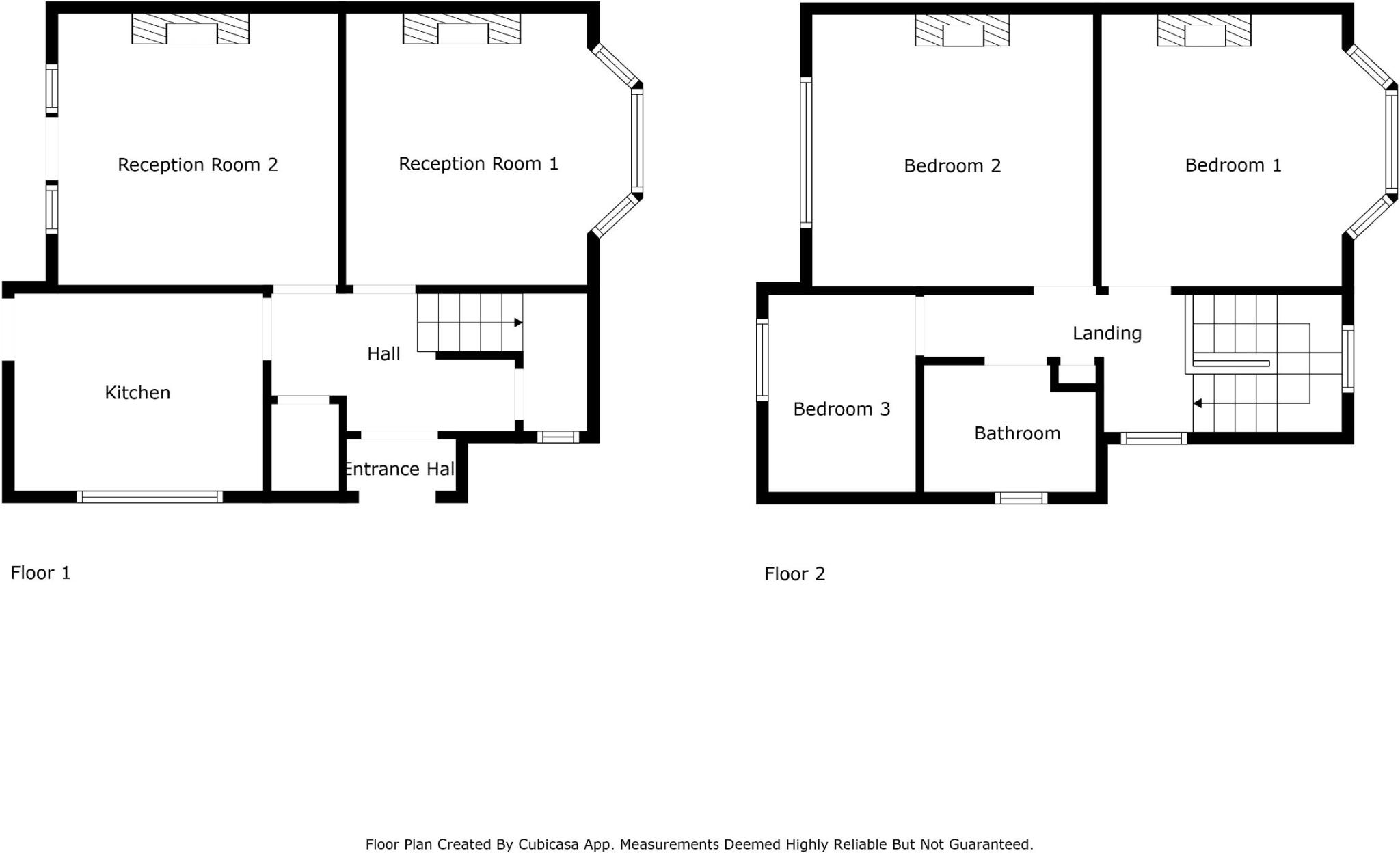
This semi-detached property is a diamond in the rough, offering an exceptional opportunity for buyers looking to create their dream family home in a desirable suburban locale. With two spacious reception rooms, a kitchen, and three bedrooms, the layout provides a perfect canvas for renovation, catering to both comfort and functionality. The property features inviting bay windows that flood the interior with natural light, while a substantial enclosed rear garden promises endless outdoor enjoyment.
Located in a comfortable suburb known for its affluent feel and excellent schools, this home is ideally positioned for families or investors seeking rental potential. The inclusion of a detached garage and a driveway adds significant value, allowing for convenient parking in this bustling area. Although the property does require extensive renovations, it holds immense potential to become a stunning residence tailored to your personal taste. Don't miss out—properties like this, especially chain-free, tend to go quickly!
3 bedroom semi-detached house for sale in Broad Street, Crewe, Cheshire, CW1 — £130,000 • 3 bed • 1 bath • 1067 ft²
3 bedroom semi-detached house for sale in Portland Drive, Scholar Green, Stoke-on-Trent, ST7 — £225,000 • 3 bed • 1 bath • 838 ft²
3 bedroom semi-detached house for sale in Lear Drive, Wistaston, Crewe, Cheshire, CW2 — £210,000 • 3 bed • 1 bath • 919 ft²
3 bedroom semi-detached house for sale in Newfield Drive, Crewe, CW1 — £140,000 • 3 bed • 1 bath • 862 ft²
3 bedroom semi-detached house for sale in Cartwright Road, Crewe, CW1 — £185,000 • 3 bed • 1 bath • 915 ft²
2 bedroom semi-detached house for sale in Elm Close, Wistaston, CW2 — £170,000 • 2 bed • 1 bath • 883 ft²










































































































