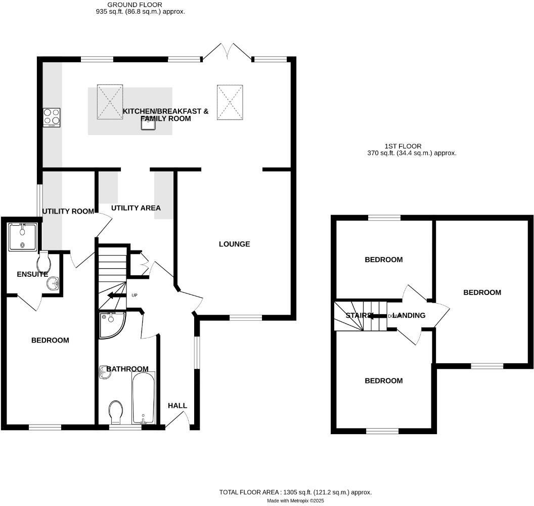
**Standout Features:**
- Spacious four-bedroom semi-detached family home
- En-suite to main bedroom and family bathroom
- Modern open-plan kitchen/dining/family room with high ceilings and bi-fold doors
- Generous oversized rear garden with outbuilding (ideal for home office or gym)
- Driveway parking for multiple vehicles
- Located in the desirable village of Stebbing, near amenities and open countryside
**Summary:**
Discover a blend of comfort and modern design in this inviting four-bedroom semi-detached family home in the peaceful village of Stebbing. The spacious layout includes a bright open-plan kitchen/dining/family room that boasts high ceilings, bi-fold doors, and abundant natural light—perfect for entertaining or family gatherings. The ground floor features a versatile bedroom with en-suite facilities, plus a family bathroom, while three well-sized bedrooms await upstairs.
Step outside to a large backyard that offers both a decked entertaining area and expansive lawn, backing onto tranquil playing fields. An outbuilding at the foot of the garden provides ample opportunity for a home office, gym, or playroom. With driveway parking for numerous vehicles, you can easily accommodate family and guests. This charming property is ideally situated close to local amenities, including a highly regarded primary school and various community clubs, making it perfect for families or investors seeking a rental opportunity in a low-crime, affluent area. Don't miss your chance to own a slice of peaceful countryside living—properties like this don't linger on the market for long!
4 bedroom semi-detached house for sale in Downs Villas, The Downs, Stebbing, Dunmow, CM6 — £600,000 • 4 bed • 2 bath • 1450 ft²
5 bedroom semi-detached house for sale in Garden Fields, Stebbing, CM6 — £470,000 • 5 bed • 2 bath • 1586 ft²
4 bedroom detached house for sale in Bran End, Stebbing, Dunmow, CM6 — £850,000 • 4 bed • 3 bath • 2601 ft²
3 bedroom detached house for sale in Garden Fields, Stebbing, Dunmow, Essex, CM6 — £500,000 • 3 bed • 3 bath • 888 ft²
4 bedroom detached house for sale in Brookfields, Stebbing, Dunmow, CM6 — £700,000 • 4 bed • 2 bath • 1752 ft²
4 bedroom detached house for sale in Stebbing Green, Stebbing, Dunmow, CM6 — £1,000,000 • 4 bed • 4 bath • 2410 ft²






























































































