Four storeys of rental potential near town centre and beach.
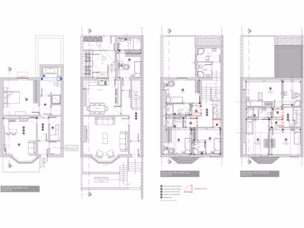
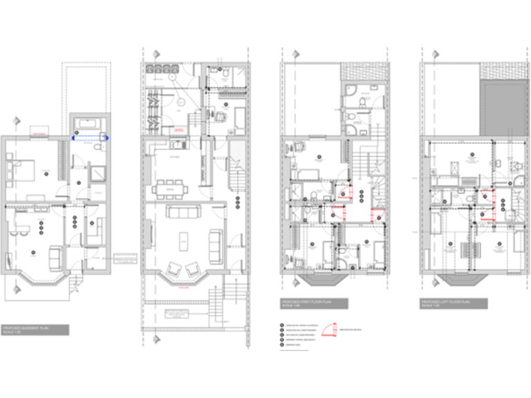
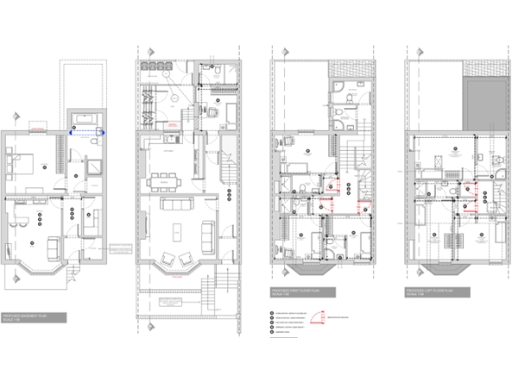
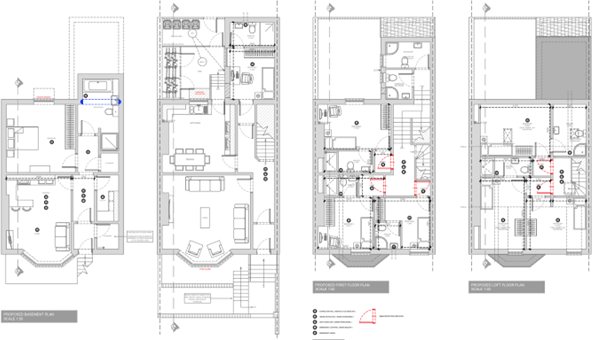
Full planning permission for 1× basement flat and 7‑bed HMO (Ref H/2023/0136)
A substantial four-storey Victorian mid-terrace in a convenient Hartlepool location, offered with vacant possession and full planning permission (Ref H/2023/0136) for a one‑bed basement flat plus a seven‑bed HMO. The property totals approximately 2,110 sq ft and has an estimated end rental value of £33,000 per annum once refurbished.
The building requires full renovation throughout: structural/cosmetic works, new services as needed, and full fit‑out to achieve HMO compliance. EPC rating E and assumed solid brick walls with no installed insulation indicate that energy upgrades will be necessary. Planning grants certainty for conversion but works must be completed to meet HMO standards and local regulations.
This is an auction sale (29 Oct 2025) sold freehold with binding contracts exchanged on sale. Buyers should allow for the standard auction deposit and buyer’s fee and review the legal pack before bidding. The location is convenient for town centre amenities, schools and Seaton Carew beach, but the wider area scores high on deprivation and recorded crime is very high, which will affect tenant demand and management considerations.
Suited to developers or landlords comfortable with renovation, the property offers a clear upside through conversion to multiple-let income. Budget realistically for refurbishment, energy improvements and ongoing management in a higher-risk neighbourhood to realise the projected rental value.
2 bedroom terraced house for sale in 14 Mapleton Road, Hartlepool, Cleveland TS24 8NP, TS24 — £27,500 • 2 bed • 1 bath
5 bedroom end of terrace house for sale in Amberton Road, Hartlepool, TS24 8, TS24 — £360,000 • 5 bed • 5 bath • 2440 ft²
2 bedroom terraced house for sale in Oxford Road, HARTLEPOOL, TS25 — £30,000 • 2 bed • 1 bath • 1012 ft²
2 bedroom end of terrace house for sale in 25 Bennett Road, Hartlepool, County Durham TS25 4NR, TS25 — £55,000 • 2 bed • 1 bath • 883 ft²
2 bedroom terraced house for sale in Uppingham Street, Hartlepool, TS25 — £10,000 • 2 bed • 1 bath
2 bedroom end of terrace house for sale in 4 Rugby Street, Hartlepool, TS25 5RR, TS25 — £15,000 • 2 bed • 1 bath


















































































