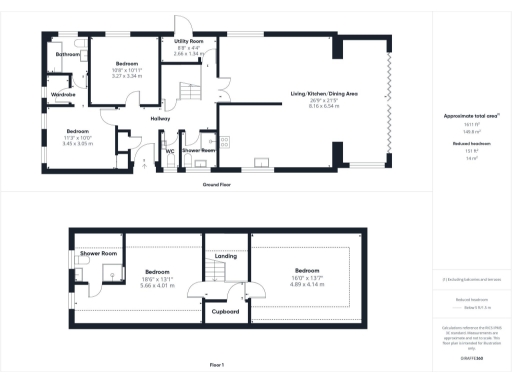
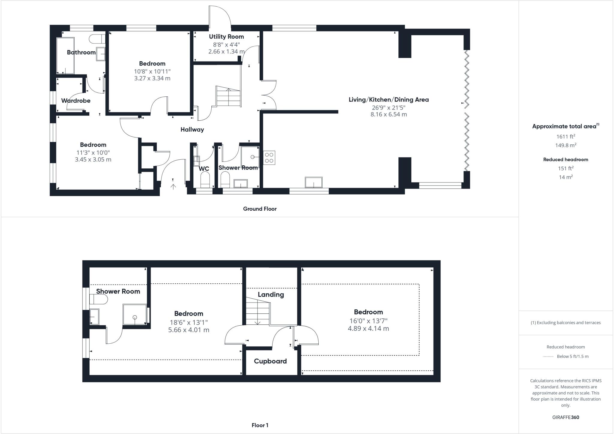
Spacious four-bedroom family home with gated parking and private garden.
Four double bedrooms, two with en suites
Set on a generous, private plot in one of Bransgore’s most favoured no-through roads, this rebuilt chalet-style home offers versatile family living across two floors. The hub is a bright open-plan living/dining/kitchen with twin bi-fold doors and an orangery-style extension that floods the space with natural light.
Four double bedrooms provide flexible sleeping arrangements, including two ground-floor bedrooms — one with a walk-in wardrobe and en suite — and two roomy first-floor bedrooms, one with an en suite. The house benefits from underfloor heating with individual room thermostats, high-quality fitted kitchen appliances, and contemporary finishes throughout following a high-standard rebuild about nine years ago.
Outside there is a substantial gated driveway with electric garage door, plus a secluded rear garden and large patio — ideal for family life and entertaining. Practical positives include vacant possession, very low local crime, no flood risk and excellent mobile and broadband connectivity.
Notable points to consider: council tax sits above average for the area, and while the property was rebuilt and is well presented, further extension or major structural changes would require planning consent. The layout includes stairs to the first-floor bedrooms, which may be a consideration for buyers requiring single-level living.
4 bedroom detached house for sale in West Road, Bransgore, Christchurch, Dorset, BH23 — £650,000 • 4 bed • 2 bath • 1349 ft²
4 bedroom detached house for sale in West Road, Bransgore, Christchurch, Dorset, BH23 — £650,000 • 4 bed • 3 bath • 1906 ft²
4 bedroom detached house for sale in Sika Rise, Bransgore, Christchurch, Dorset, BH23 — £745,000 • 4 bed • 3 bath • 1392 ft²
4 bedroom detached house for sale in Mount Pleasant Drive, Bransgore, Christchurch, Hampshire, BH23 — £599,950 • 4 bed • 2 bath
3 bedroom detached house for sale in Marryat Way, Bransgore, Christchurch, Dorset, BH23 — £674,950 • 3 bed • 3 bath • 1697 ft²
5 bedroom detached house for sale in Brookside Road, Bransgore, Christchurch, Dorset, BH23 — £950,000 • 5 bed • 3 bath • 2808 ft²






















































































































