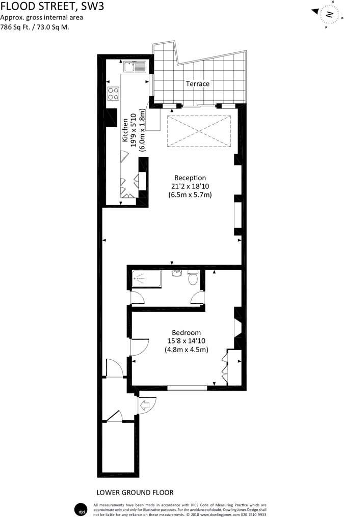
Large, well-presented one-bedroom flat with private patio and share of freehold.
Larger-than-average one-bedroom layout (circa 786 sq ft)
This larger-than-average one-bedroom flat sits on Flood Street in the heart of Chelsea, presented in excellent decorative order and arranged to make the most of its nearly 786 sq ft. High ceilings, light oak floors and large glazed openings give a bright, airy feel, while modern touches — air conditioning, underfloor electric heating and integrated kitchen appliances — make it immediately comfortable as a long-term home or city pied-à-terre.
Practicality is a strong point: the property has its own private entrance, a separate utility room with Miele washer and tumble dryer, and a small private patio for outdoor seating or planters. The share of freehold and an underlying lease extending well over 900 years provide long-term security uncommon at this price level in central Chelsea.
Be aware of a few material points: the building is a Victorian conversion (constructed before 1900) with solid brick walls that are assumed to lack insulation, and the main heating and fuel is electric — both factors that can increase running costs compared with gas-heated homes. Council tax is above average for the area. The outdoor space is a small courtyard rather than a full garden, and views are street-facing rather than open or river vistas.
Positioned moments from the King’s Road and Sloane Square, with excellent transport links and shops, restaurants and parks nearby, this apartment suits a professional, couple or investor seeking a high-quality Chelsea base with strong longevity on the lease. It offers immediate move-in condition with some running-cost considerations to factor into long-term budgeting.
2 bedroom maisonette for sale in Flood Street, Chelsea, London, SW3 — £1,650,000 • 2 bed • 1 bath • 958 ft²
1 bedroom flat for sale in Cheyne Place, London, Greater London, SW3 — £585,000 • 1 bed • 1 bath • 1000 ft²
1 bedroom flat for sale in Coleherne Road, Chelsea, London, SW10 — £725,000 • 1 bed • 1 bath • 686 ft²
1 bedroom flat for sale in Shrewsbury House, Cheyne Walk, London, SW3 — £1,200,000 • 1 bed • 2 bath • 827 ft²
1 bedroom apartment for sale in Oakley Street, Chelsea, London, SW3 — £725,000 • 1 bed • 1 bath • 450 ft²
1 bedroom flat for sale in Gunter Grove, Chelsea, SW10 — £450,000 • 1 bed • 1 bath • 521 ft²






































