Income-producing leasehold flat with shared parking and strong broadband.
Long-term tenant in situ, producing £9,000 pa gross income
A straightforward buy-to-let suited to investors seeking immediate income. This one-bedroom leasehold flat in PE4 is let to a long-term tenant generating a current gross income of £9,000 per year, representing an approximate gross yield of 10.6% at the listed price of £85,000. Shared private parking and fast broadband add practical appeal for lettings.
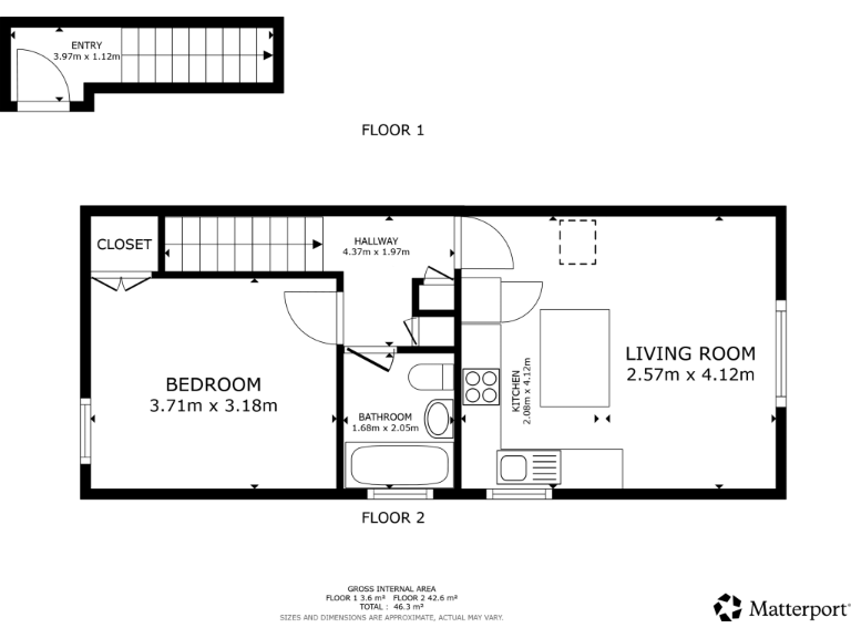
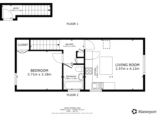
The flat is average in size (about 441 sq ft) and arranged over a multi-storey layout with one bedroom, lounge, kitchen and bathroom. The neighbourhood is described as an achieving, family-orientated area with good local amenities and several nearby primary and secondary schools. Flood risk is low, mobile signal is excellent and crime is average for the area.
Important practical points for buyers: the property is leasehold and currently occupied by tenants who intend to remain. A Buyers Premium will apply to secure the sale; prospective purchasers should review the Let Property Pack and lease documentation before bidding. There is limited internal information provided and no recent photos of internal condition — purchasers should allow for a viewing and legal/technical checks. The unit is best suited to committed investors or developers looking for an income-producing addition to a portfolio.
1 bedroom flat for sale in High Street, Peterborough, PE2 — £105,000 • 1 bed • 1 bath • 5393 ft²
1 bedroom flat for sale in Stagshaw Drive, Peterborough, PE2 — £80,000 • 1 bed • 1 bath • 333 ft²
1 bedroom flat for sale in Bushfield, Peterborough, PE2 — £50,000 • 1 bed • 1 bath • 452 ft²
1 bedroom flat for sale in Bushfield, Peterborough,PE2 — £50,000 • 1 bed • 1 bath • 441 ft²
2 bedroom flat for sale in Osric Court, Peterborough, Cambridgeshire, PE1 — £115,000 • 2 bed • 1 bath • 786 ft²
4 bedroom end of terrace house for sale in Crabtree, Peterborough, PE4 — £185,000 • 4 bed • 3 bath • 990 ft²














































































