Bright three-storey family home in sought-after Knightwood Park cul-de-sac.
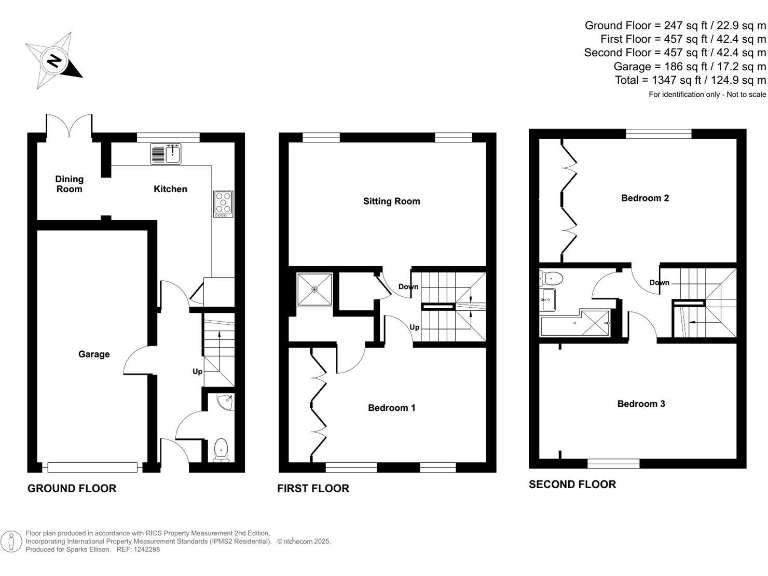
Spacious 3-bed, three-storey townhouse — approx. 1,347 sq ft
Integral garage plus driveway parking; garage has power and light
Refitted family bathroom and en suite to principal bedroom
Rear garden ~30' x 17' with patio and lawn; small overall plot
Within Knightwood and Thornden school catchments (strong options)
Medium flood risk — check insurance and flood history before buying
Very low local crime; fast broadband and mains gas central heating
Loft partially boarded; mid-terrace limits private outdoor space
Set over three storeys in a quiet cul-de-sac of the well-regarded Knightwood Park development, this modern 1999 townhouse offers family-friendly living with practical space. The house provides a generous footprint (approx. 1,347 sq ft) with a bright first-floor sitting room, separate kitchen/breakfast area and an integral garage with driveway parking.
Sleeping three double bedrooms, the home includes a refitted family bathroom and an en suite to the main bedroom, plus built-in wardrobes across the bedrooms for straightforward storage. A rear garden (approx. 30' x 17') combines a paved patio and lawn for easy family entertaining and outdoor play. Broadband speeds are fast and local crime levels are very low.
Location is a clear selling point: local shops, a leisure centre, woodland walks and strong school catchments (Knightwood and Thornden) are all nearby, making this a sensible choice for families wanting convenience and green space. The property is freehold and benefits from gas central heating and UPVC double glazing.
Notable practical points you should know: the plot is modest in size and the property sits in an area assessed as having a medium flood risk, which may affect insurance costs and should be investigated. The garage is an advantage for storage but the house is mid-terrace so external private space is limited. The loft is partially boarded rather than fully fitted. Sellers are seeking a forward purchase, which could affect timing for completion.
3 bedroom semi-detached house for sale in Fairbairn Walk, Knightwood Park, Chandler's Ford, SO53 — £375,000 • 3 bed • 2 bath • 1100 ft²
3 bedroom end of terrace house for sale in Jack Close, Knightwood Park, Chandler's Ford, SO53 — £350,000 • 3 bed • 2 bath • 752 ft²
3 bedroom terraced house for sale in Tolefrey Gardens, Knightwood Park, Chandlers Ford, SO53 — £350,000 • 3 bed • 1 bath • 818 ft²
3 bedroom detached house for sale in Harvest Road, Knightwood Park, Chandler's Ford, SO53 — £450,000 • 3 bed • 1 bath • 952 ft²
3 bedroom link detached house for sale in Tomkyns Close, Chandler's Ford, Eastleigh, Hampshire, SO53 — £400,000 • 3 bed • 2 bath • 897 ft²
4 bedroom detached house for sale in Catmint Close, Knightwood Park, Chandler's Ford, SO53 — £699,950 • 4 bed • 3 bath • 1618 ft²














































































































