Dramatic interior space for design-minded buyers seeking central E8 convenience.
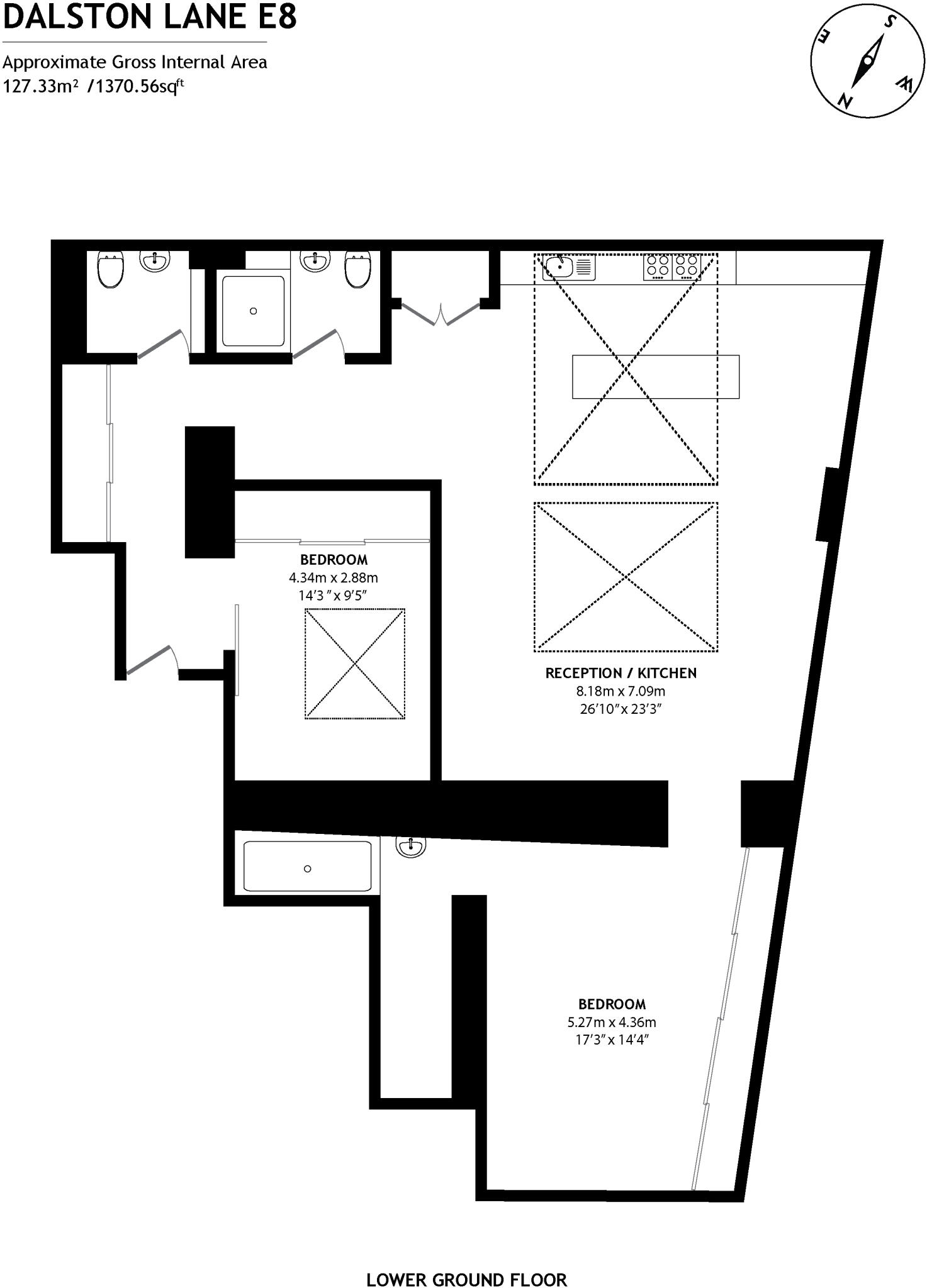
- Extremely large 1,370 sq ft open-plan apartment with double-height ceilings
- Polished concrete floors with underfloor heating and bespoke carpentry
- Principal bedroom with fitted wardrobes and en-suite bathroom
- Two bathrooms plus additional separate w.c for family convenience
- Security entrance, double glazing and fast broadband connectivity
- Leasehold: 96 years remaining — consider long-term lease implications
- Local area: high crime rates and very deprived neighbourhood statistics
- Offered with no onward chain; close to Hackney Downs and local amenities
Set within an eye-catching conversion, this exceptionally roomy two-bedroom apartment offers dramatic double-height ceilings, bespoke carpentry and polished concrete floors with underfloor heating. The open-plan living and kitchen area is flooded with light from large windows and skylights, creating an impressive entertaining space for families or professionals who value design-led interiors and generous proportions.
The principal bedroom includes fitted bespoke wardrobes and an en-suite, with a second double bedroom and separate shower room plus an additional w.c. Practical benefits include a security entrance, mains gas central heating, double glazing and fast broadband — all within a large 1,370 sq ft footprint and offered with no onward chain.
Buyers should note material facts: the property is leasehold with 96 years remaining, and the local area records high crime levels and significant deprivation. While the apartment itself is finished to a contemporary standard, purchasers wanting longer lease security or quieter surroundings should factor these issues into their decision.
Located close to Hackney Downs overground and lively Mare Street and Broadway Market, the flat suits buyers who prioritise transport links, amenities and a striking interior over a suburban setting. For those seeking a spacious, characterful home in central E8, this apartment presents strong immediate living appeal and scope to personalise over time.
2 bedroom flat for sale in Flat 5, Temple Works, Brett Passage, Hackney, E8 — £835,000 • 2 bed • 2 bath • 951 ft²
2 bedroom flat for sale in Institute Place, Hackney, London, E8 — £700,000 • 2 bed • 1 bath • 922 ft²
2 bedroom flat for sale in Temple Works, Brett Passage, Hackney, London, E8 — £775,000 • 2 bed • 2 bath • 1101 ft²
1 bedroom flat for sale in Colonnades Apartments, 35 Sylvester Road, London, E8 — £530,000 • 1 bed • 1 bath • 565 ft²
2 bedroom apartment for sale in Martello Street, London, E8 — £825,000 • 2 bed • 2 bath • 926 ft²
2 bedroom flat for sale in Institute Place, Hackney, E8 — £525,000 • 2 bed • 1 bath • 850 ft²






























































