NE65 8DL - 3 bedroom semidetached house for sale in Church Street, Lon…

View on Property Piper

3 bedroom semi-detached house for sale in Church Street, Longframlington, Morpeth, Northumberland, NE65

Summary - Ashdown, Church Street, Longframlington NE65 8DL

3 bed 1 bath Semi-Detached

Refurbished semi in popular Longframlington; garden and parking, scope to extend.
Recently renovated throughout, ready to occupy
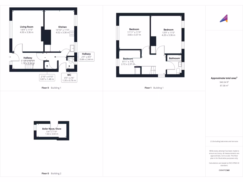
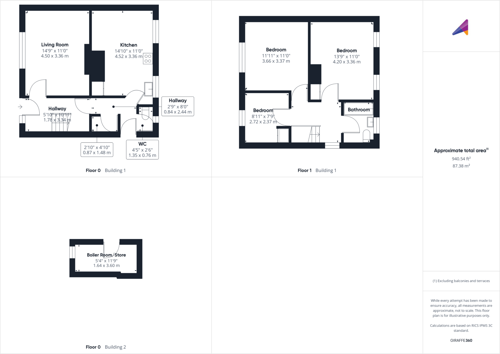
Recently renovated three-bedroom semi-detached home in the popular village of Longframlington. The ground floor offers a sitting room, cloakroom, and breakfasting kitchen; three bedrooms and a family bathroom sit on the first floor. A boiler room/store sits to the side and there is a sizeable rear garden mainly laid to gravel, plus off-road parking to the front.

This property will suit a first-time buyer or buy-to-let investor wanting a ready-to-move-in home in a quiet village with local amenities: award-winning village shop, butcher, pubs and easy access to Rothbury, the National Park and the A1. The house is freehold, modest in size at about 940 sq ft, and council tax band B (2024/25).

Notable practical points: the home uses oil-fired heating with a boiler and radiators, has double glazing installed post-2002, and an EPC rating of E. Broadband speeds are slow in the area and the walls are traditional sandstone/limestone with assumed no insulation in the original fabric. The property could be extended subject to planning consents if more space is required.

Overall this is a straightforward, recently refurbished village home offering comfortable accommodation and clear potential for modest improvement or extension. Buyers should note the oil heating, EPC rating and local broadband limits when comparing running costs and connectivity needs.

Property Details

Image Descriptions

Floorplan Description

Rooms

Textual Property Features

Target Audience

AI Tags

Detected Visual Features

EPC Details

Nearby Schools

Nearest Bars And Restaurants

,,,,}

Nearest General Shops

,,}

Nearest Grocery shops

,,}

Nearest Supermarkets

,,}

Nearest Religious buildings

,,}

Nearest Medical buildings

,,,}

Nearest Airports

,}

Nearest Leisure Facilities

,,,,}

Nearest Tourist attractions

,,}

Nearest Train stations

,,,,}

Nearest Bus stations and stops

,,,,}

Nearest Hotels

,,}

Tags

Local Market Stats

Similar Properties

Meta

High Res Images

Compatible Images

Low res Images

Thumbnails

Raw Images

High Res Floorplan Images

Compatible Floorplan Images

Low res Floorplan Images

FloorplanImages Thumbnail

Raw Floorplan Images