Spacious garden and garage, ideal for families seeking renovation potential.
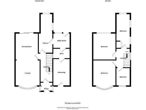
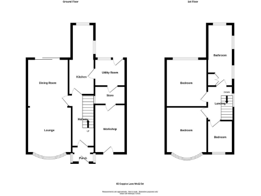
Extended traditional semi with three bedrooms
A solid 1930s semi with an extended layout and genuine family appeal, set on a long private rear garden in a well-established Willenhall street. The house offers three bedrooms, an extended kitchen, separate utility room and a garage/workshop, giving practical room to live and to improve. The block‑paved frontage and off‑street parking add convenience for day‑to‑day family life.
The property is presented as a largely original-period home that will reward sympathetic updating. There is no central heating system currently and the walls are original solid brick with no known insulation, so buyers should allow budget for heating and thermal improvements. The double glazing is present, but install dates are unknown.
Location is a key strength: essential amenities, public transport links and easy access to the M6 are close by. Local schools include several rated Good and one Outstanding nearby, making this suitable for families. The area is classified as more deprived, which may influence resale timing, but the freehold tenure and decent plot size give clear scope for value-adding refurbishment.
In short, this is a practical family home with clear potential for improvement. It suits buyers looking to modernise and increase comfort and value rather than those seeking a turnkey finish.
3 bedroom semi-detached house for sale in James Street, Willenhall, West Midlands, WV13 — £290,000 • 3 bed • 2 bath • 1451 ft²
3 bedroom semi-detached house for sale in Sandringham Avenue, Willenhall, West Midlands, WV12 — £290,000 • 3 bed • 1 bath • 889 ft²
3 bedroom semi-detached house for sale in Birch Tree Hollow, Willenhall, West Midlands, WV12 — £200,000 • 3 bed • 1 bath • 812 ft²
3 bedroom semi-detached house for sale in Lea View, Willenhall, WV12 — £250,000 • 3 bed • 1 bath • 981 ft²
3 bedroom semi-detached house for sale in Perth Road, WILLENHALL, West Midlands, WV12 — £290,000 • 3 bed • 1 bath • 1301 ft²
3 bedroom semi-detached house for sale in Shepherd Drive, Willenhall, WV12 — £200,000 • 3 bed • 1 bath • 1141 ft²


























































































