Chain-free two-bed terrace with character, loft storage and secure garden near the Peak District..
- Two good-sized bedrooms in a Victorian stone terrace
- Chain free sale, ready to move into
- Modern fitted kitchen and updated bathroom
- Loft insulated, floored and lit for substantial storage
- Secure flagged rear garden with small outbuilding
- Leasehold with very long lease remaining (866 years)
- Stone walls likely lack cavity insulation; consider energy upgrades
- Average room sizes; not large open-plan space
A tidy two-bedroom Victorian stone terrace in Old Glossop, offered chain-free and ready to move into. The house combines period charm — high ceilings, original coving and a feature fireplace — with practical updates such as a modern fitted kitchen, uPVC double glazing and a mains gas boiler.
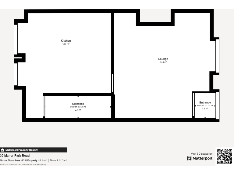
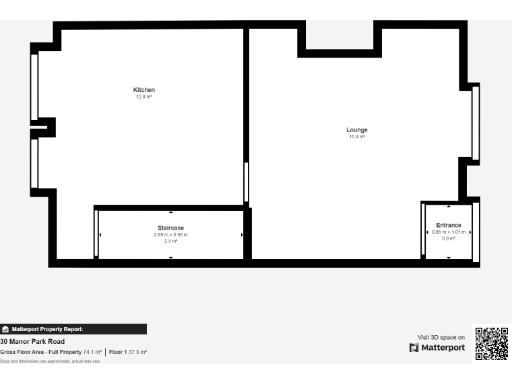
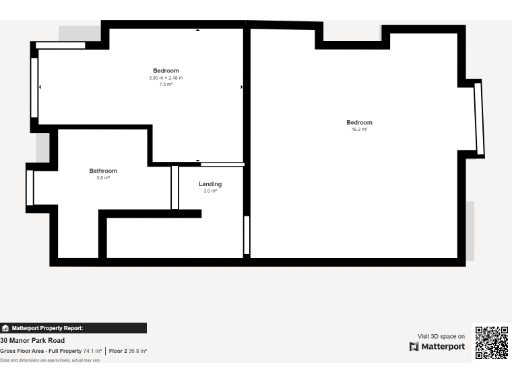
The layout suits first-time buyers or couples: a welcoming lounge, kitchen/diner with cellar access, two good-sized bedrooms and a modern bathroom. The loft is insulated, floored and lit, providing substantial storage. Outside, a secure flagged rear garden and a small brick outbuilding give low-maintenance outdoor space and extra storage.
Practical points to note: the property is leasehold (long lease remaining, 866 years) and the stone walls are assumed to have no cavity insulation. Room sizes are modest to average, so buyers wanting large open-plan space or fully cavity-insulated walls should plan upgrades. Council tax is very low and transport links to Manchester are convenient, making this a sensible, well-located choice close to the Peak District and local amenities.
2 bedroom terraced house for sale in Manor Park Road, Old Glossop, SK13 — £175,000 • 2 bed • 1 bath • 468 ft²
2 bedroom terraced house for sale in Whitfield Cross, Glossop, SK13 8NW, SK13 — £230,000 • 2 bed • 1 bath • 1326 ft²
2 bedroom end of terrace house for sale in Primrose Lane, Glossop, SK13 — £197,500 • 2 bed • 1 bath • 646 ft²
2 bedroom end of terrace house for sale in Hollincross Lane, Glossop, SK13 — £169,950 • 2 bed • 1 bath • 700 ft²
2 bedroom terraced house for sale in Ashton Street, Glossop, SK13 — £215,000 • 2 bed • 1 bath • 675 ft²
2 bedroom terraced house for sale in Charlestown Road, Glossop, SK13 — £198,000 • 2 bed • 1 bath • 450 ft²






















































































