**Standout Features:**
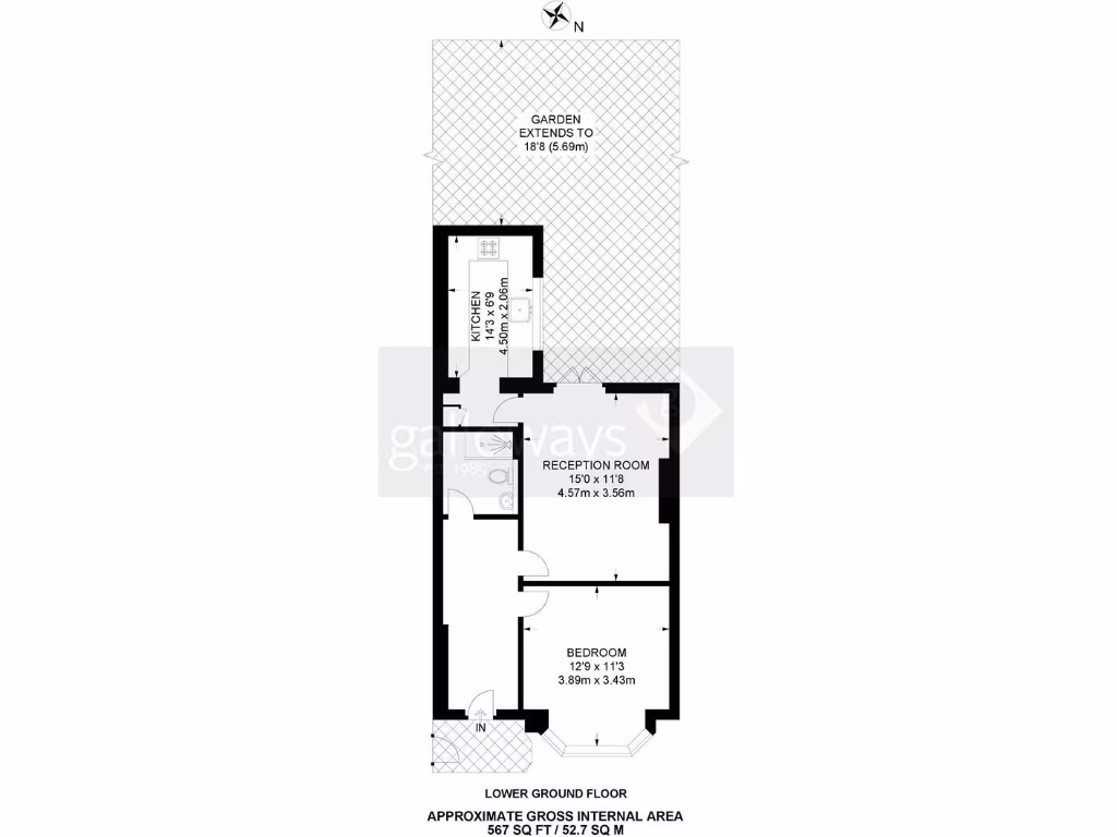
- Spacious one-bedroom Victorian conversion flat
- Own front door with private access
- Large reception room leading to a private South West-facing rear garden
- Double bedroom with bay window, allowing ample natural light
- Modern contemporary bathroom and separate fitted kitchen
- Planning permission available for a two-bedroom conversion (subject to planning)
- Chain-free with 959 years remaining on the lease
- Excellent transport links: 0.4 miles to West Norwood and 0.8 miles to Tulse Hill stations
Experience the charm and comfort of this delightful one-bedroom Victorian conversion flat, perfect for first-time buyers or investors seeking rental potential. The well-appointed space features a spacious reception room with direct access to a private garden, ideal for relaxation or entertaining. A bright double bedroom with a bay window complements the modern amenities, including a sleek bathroom and a fitted kitchen—making it a cozy yet functional home.
With plans included for a two-bedroom conversion pending planning consent, there's excellent scope for future growth, adding even more value to your investment. Located just 0.4 miles from West Norwood Station and close to local shops, cafés, and parks, this property offers convenience and accessibility in a vibrant community. Don't miss this opportunity—schedule your viewing today and envision your future in this stunning flat!
2 bedroom flat for sale in Thurlestone Road, London, SE27 — £550,000 • 2 bed • 1 bath • 705 ft²
2 bedroom maisonette for sale in Auckland Hill, West Norwood, SE27 9PG, SE27 — £400,000 • 2 bed • 1 bath • 588 ft²
3 bedroom flat for sale in St. Louis Road, West Norwood, SE27 — £535,000 • 3 bed • 2 bath • 1165 ft²
2 bedroom flat for sale in Samos Road, London, Penge, SE20 — £425,000 • 2 bed • 1 bath • 663 ft²
2 bedroom flat for sale in Elmcourt Road, West Norwood, SE27 — £575,000 • 2 bed • 1 bath • 734 ft²
2 bedroom flat for sale in Eldon Park, South Norwood, SE25 — £240,000 • 2 bed • 1 bath • 516 ft²


















































