Ideal starter or investment with off-street parking and no chain.
Head-of-cul-de-sac position with low through-traffic
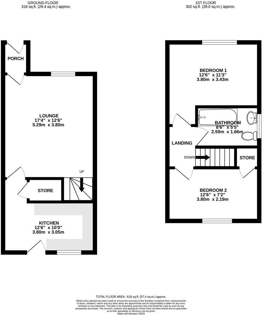
Quietly placed at the head of a cul-de-sac, this two-bedroom semi offers an affordable, low-maintenance entry into Chesterfield’s market. The living room is generously sized for a property of this type, and the modern fitted kitchen comes with integrated oven and gas hob, giving immediate lifestyle convenience.
Two double bedrooms and a contemporary family bathroom sit upstairs, making the layout practical for a first home or buy-to-let. Gas central heating via a Glow Worm combi boiler and uPVC double glazing are in place, helping with comfort and running costs; the property is freehold and offered with no onward chain.
Outside, there’s a small lawn to the front, a south-west facing rear garden that currently requires attention, and off-street parking via a shared gravel driveway. Broadband speeds are reported as slow, and the EPC is rated D — both factors to consider if high-speed connectivity or top energy efficiency are priorities.
Overall this 618 sq.ft. home suits first-time buyers or investors seeking a tidy, well-located starter property with scope for modest cosmetic improvement to add value.
2 bedroom semi-detached house for sale in Longshaw Close, Chesterfield, S43 — £160,000 • 2 bed • 1 bath • 787 ft²
3 bedroom semi-detached house for sale in George Street, Brimington, Chesterfield, S43 — £160,000 • 3 bed • 1 bath • 861 ft²
2 bedroom semi-detached house for sale in Bramshill Close, Sothall, Sheffield, Sheffield, S20 2QQ, S20 — £190,000 • 2 bed • 1 bath • 522 ft²
2 bedroom semi-detached house for sale in Brushfield Road, Linacre Woods, Chesterfield, S40 — £190,000 • 2 bed • 1 bath • 594 ft²
2 bedroom end of terrace house for sale in Devizes Close, Chesterfield, Derbyshire, S40 — £100,000 • 2 bed • 1 bath • 840 ft²
2 bedroom semi-detached house for sale in Milton Place, Staveley, Chesterfield, S43 — £180,000 • 2 bed • 1 bath • 759 ft²


















































