EX14 3DG - 3 bed village semi with garages in Tiverton And Honiton, EX…

View on Property Piper

3 bedroom semi-detached house for sale in Feniton, EX14

Summary - Feniton EX14 3DG

3 bed 1 bath Semi-Detached

Village three-bed semi with solar income, two garages and easy commuting links.
Three good-sized bedrooms with modern family bathroom
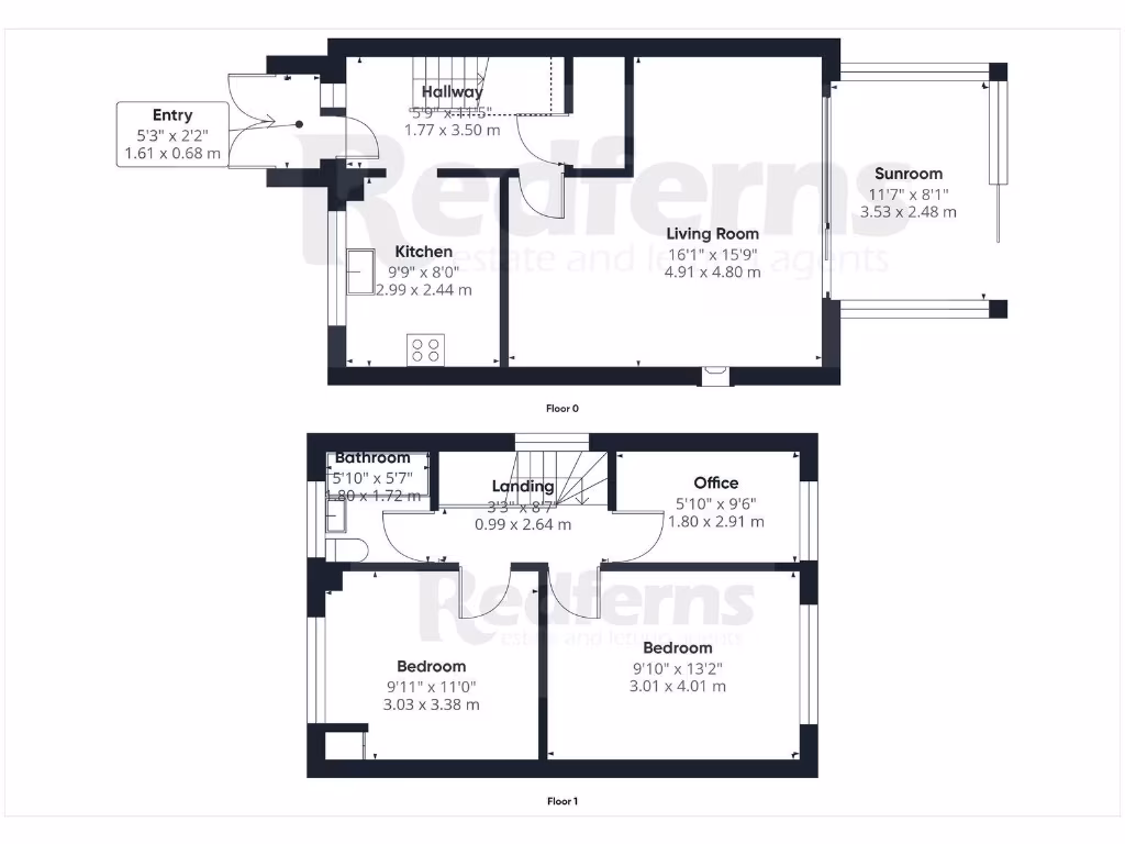
Set in the heart of Feniton village, this three-bedroom semi offers a practical family layout with ready-to-use living space. The well-equipped kitchen, generous living/dining room and a roomy conservatory give flexible ground-floor accommodation that links directly to a low-maintenance, landscaped rear garden. Solar panels reduce running costs and currently generate income.

Upstairs are three good-sized bedrooms served by a single modern family bathroom. The property includes two single garages (one with light and power), a carport and driveway space — useful for storage, hobbies or additional parking. The plot is modest but neatly presented, and the garden’s gravelled finish keeps maintenance easy; there is also a sheltered hot tub which will require inspection and servicing by any buyer.

The location is a strong practical selling point: shops, the well-regarded primary school, and the railway station (services to Exeter and London Waterloo) are all within walking distance. Quick road access to the A30 and the wider Exeter/M5 corridor supports commuting and family travel.

Important practical notes: the home is freehold, council tax band C (affordable), and described as lived-in but serviceable. The single bathroom and relatively small plot may not suit buyers seeking larger gardens or multiple bathrooms without alteration. Prospective purchasers should verify solar income, hot tub condition and any necessary servicing.

Property Details

Brochure Descriptions

Image Descriptions

Floorplan Description

Rooms

Textual Property Features

Target Audience

AI Tags

Detected Visual Features

Nearby Schools

Nearest Bars And Restaurants

,,,,}

Nearest General Shops

,,}

Nearest Grocery shops

,,}

Nearest Supermarkets

,,}

Nearest Religious buildings

,,}

Nearest Medical buildings

,,,}

Nearest Airports

}

Nearest Leisure Facilities

,,,,}

Nearest Tourist attractions

,,}

Nearest Train stations

,,,,}

Nearest Bus stations and stops

,,,,}

Nearest Hotels

,,}

Tags

Local Market Stats

Similar Properties

Meta

High Res Images

Compatible Images

Low res Images

Thumbnails

Raw Images

High Res Floorplan Images

Compatible Floorplan Images

Low res Floorplan Images

FloorplanImages Thumbnail

Raw Floorplan Images