Spacious three-bedroom semi with 70ft south-facing garden and strong extension potential.
70ft south-facing rear garden ideal for family outdoor use
Wide block-paved driveway parking for at least three cars
Attached single garage with internal/outbuilding access
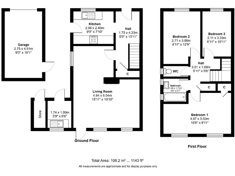
L-shaped lounge/diner provides generous reception space
Potential to extend rear and loft subject to planning consents
Boiler located in outbuilding; check access and service history
EPC D and Council Tax Band E — energy/ongoing costs above average
Mid-20th-century build; likely cavity walls without insulation
This three-bedroom semi-detached house on Hatherleigh Gardens offers practical family space with clear scope to add value. The L-shaped lounge/diner, good-sized principal bedroom and a long 70ft south-facing garden provide comfortable everyday living, while a wide block-paved driveway and attached garage deliver excellent off-street parking for several cars.
The property is presented in neutral condition and will suit buyers who want a ready-to-live-in home with room for improvement. There is potential to extend to the rear and into the loft (subject to planning), matching similar schemes in the road and increasing living space and resale value.
Practical considerations: the boiler is housed in an outbuilding and the property has an EPC rating of D and Council Tax Band E. The mid-20th-century construction likely lacks cavity wall insulation, so buyers should factor in energy upgrades and possible modernization works. Overall, this freehold home is well placed for families: local shops, Oakmere Park, and Potters Bar station are close by with fast links to central London.
3 bedroom semi-detached house for sale in Tempest Avenue, Potters Bar, EN6 — £550,000 • 3 bed • 1 bath • 1197 ft²
3 bedroom semi-detached house for sale in Park Avenue, Potters Bar, EN6 — £620,000 • 3 bed • 1 bath • 1304 ft²
3 bedroom semi-detached house for sale in Hatherleigh Gardens, Potters Bar, EN6 — £630,000 • 3 bed • 1 bath • 872 ft²
3 bedroom semi-detached house for sale in Park Avenue, Potters Bar, EN6 — £575,000 • 3 bed • 1 bath • 904 ft²
3 bedroom semi-detached house for sale in Hatherleigh Gardens, Potters Bar, EN6 — £625,000 • 3 bed • 2 bath • 1248 ft²
3 bedroom semi-detached house for sale in Hill Rise, Potters Bar, EN6 — £730,000 • 3 bed • 2 bath • 1629 ft²






































































