Spacious garden and extension potential for growing families or investors.
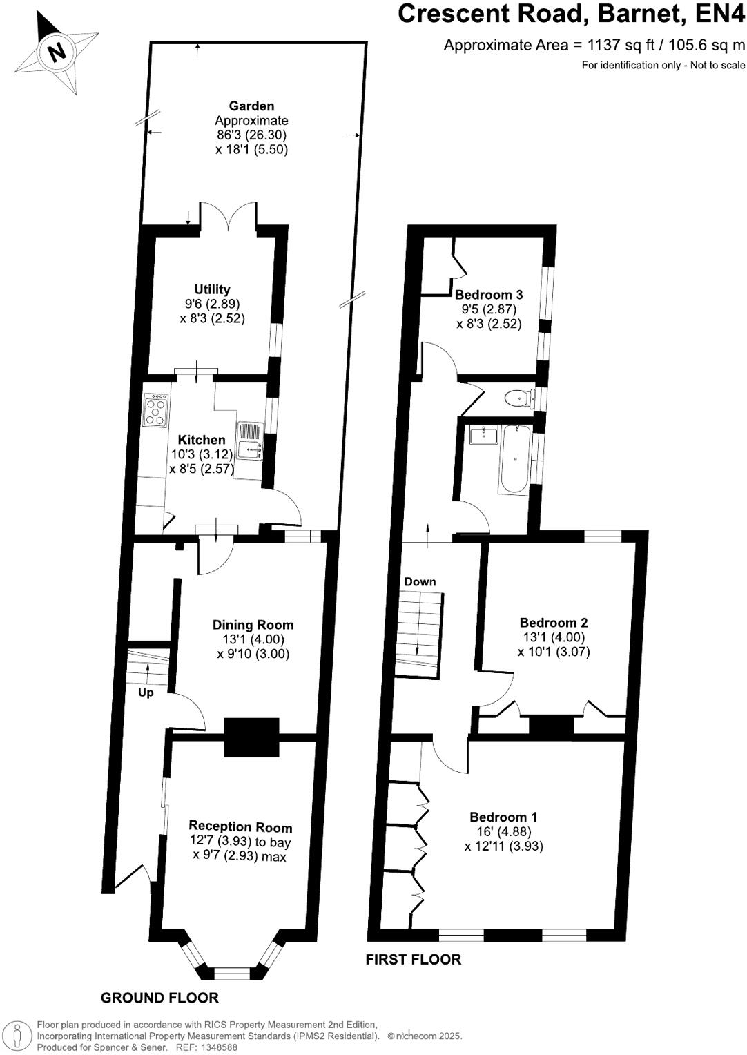
- Three bedrooms with bay-fronted reception room
- Approximately 85ft rear garden with side access
- Chain free; potential to extend subject to consents
- Requires renovation; cosmetic and likely energy upgrades
- Solid brick walls assumed uninsulated; EPC rating D
- Single bathroom plus separate WC; may limit family convenience
- Council Tax Band E (above average); tenure unknown
- Excellent transport links and nearby outstanding schools
This mid-terraced Victorian house on Crescent Road is a chain-free three-bedroom family home with a large rear garden of approximately 85ft and scope to extend (subject to planning). Its period bay-fronted reception and traditional layout give a solid base for refurbishment or reconfiguration to suit modern family living or investment refurbishment schemes.
The property requires updating throughout — cosmetic and likely some practical works — and currently has a single bathroom plus separate WC. Walls are original solid brick (assumed uninsulated) and the EPC is D, so buyers should budget for insulation and energy improvements. Tenure is unknown and purchasers should confirm before exchange.
Sited under half a mile from New Barnet mainline station with quick links to central London, the house sits in an affluent, low-crime area close to several well-regarded schools, supermarkets and leisure facilities. Broadband and mobile connectivity are strong, making the location practical for commuters, families and renters seeking reliable services.
3 bedroom detached house for sale in Crescent Road, East Barnet, EN4 — £795,000 • 3 bed • 1 bath • 1131 ft²
3 bedroom end of terrace house for sale in Lancaster Road, Barnet, EN4 — £600,000 • 3 bed • 1 bath • 816 ft²
3 bedroom semi-detached house for sale in Wentworth Road, Barnet, EN5 — £780,000 • 3 bed • 1 bath • 969 ft²
3 bedroom semi-detached house for sale in Longmore Avenue, East Barnet, Barnet, Hertfordshire, EN4 — £600,000 • 3 bed • 1 bath • 1102 ft²
3 bedroom terraced house for sale in Mays Lane, Barnet, EN5 — £550,000 • 3 bed • 1 bath • 858 ft²
3 bedroom end of terrace house for sale in West End Lane, Barnet, EN5 — £500,000 • 3 bed • 1 bath • 1158 ft²


















































































