Compact modern flat with communal terraces close to transport.
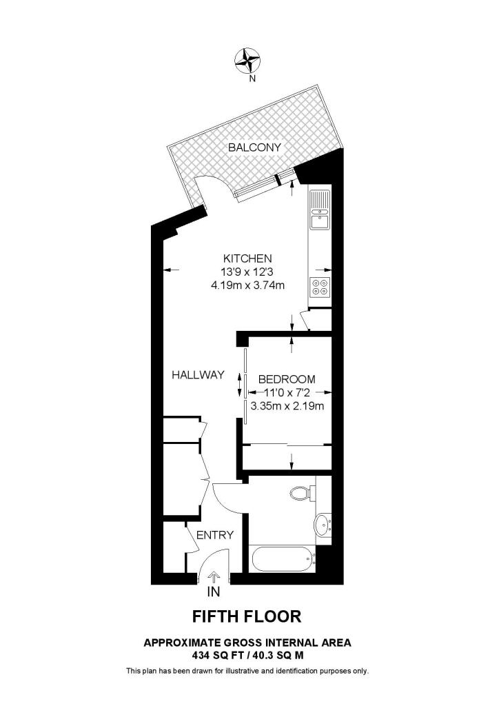
Fifth-floor one-bedroom flat with private balcony and city views
A bright fifth-floor one-bedroom apartment in Nine Elms Point with a private balcony and city views. The open-plan living area includes a modern integrated kitchen and floor-to-ceiling windows that maximise light. Onsite communal roof terrace and building amenities add usable outdoor and social space.
Practical features include built-in bedroom wardrobes, lift access, 24-hour concierge and fast broadband/mobile connectivity. The property is offered with an EPC rating B and sits within easy walking distance of Nine Elms and Vauxhall transport links, making it attractive for rental or city living.
Important considerations: the flat is leasehold and will be sold at an online auction; buyers should review legal pack and lease length prior to bidding. Heating is via a community scheme and council tax is above average. The local area scores as very deprived, which may affect long-term resale dynamics.
This apartment suits investors or commuters seeking a low-maintenance central London unit with good amenity provision and immediate let-ready appeal, provided purchasers account for tenure, service arrangements and the auction sale process.
1 bedroom flat for sale in Brent House, Nine Elms Point, 50 Wandsworth Road, London, SW8 — £350,000 • 1 bed • 1 bath • 434 ft²
Studio flat for sale in Nine Elms Point, Nine Elms, London, SW8 — £340,000 • 1 bed • 1 bath • 434 ft²
Studio flat for sale in Nine Elms Point, Nine Elms, London, SW8 — £400,000 • 1 bed • 1 bath • 434 ft²
2 bedroom flat for sale in Bach House, Nine Elms Point, 50 Wandsworth Road, London, SW8 — £650,000 • 2 bed • 2 bath • 838 ft²
1 bedroom flat for sale in Riverside Court, 20 Nine Elms Lane, London, SW8 — £475,000 • 1 bed • 1 bath • 768 ft²
2 bedroom flat for sale in Bach House, Nine Elms Point, Nine Elms, London, SW8 — £650,000 • 2 bed • 2 bath • 838 ft²






































































