Private rooftop terrace with uninterrupted harbour views — perfect for holiday rental potential.
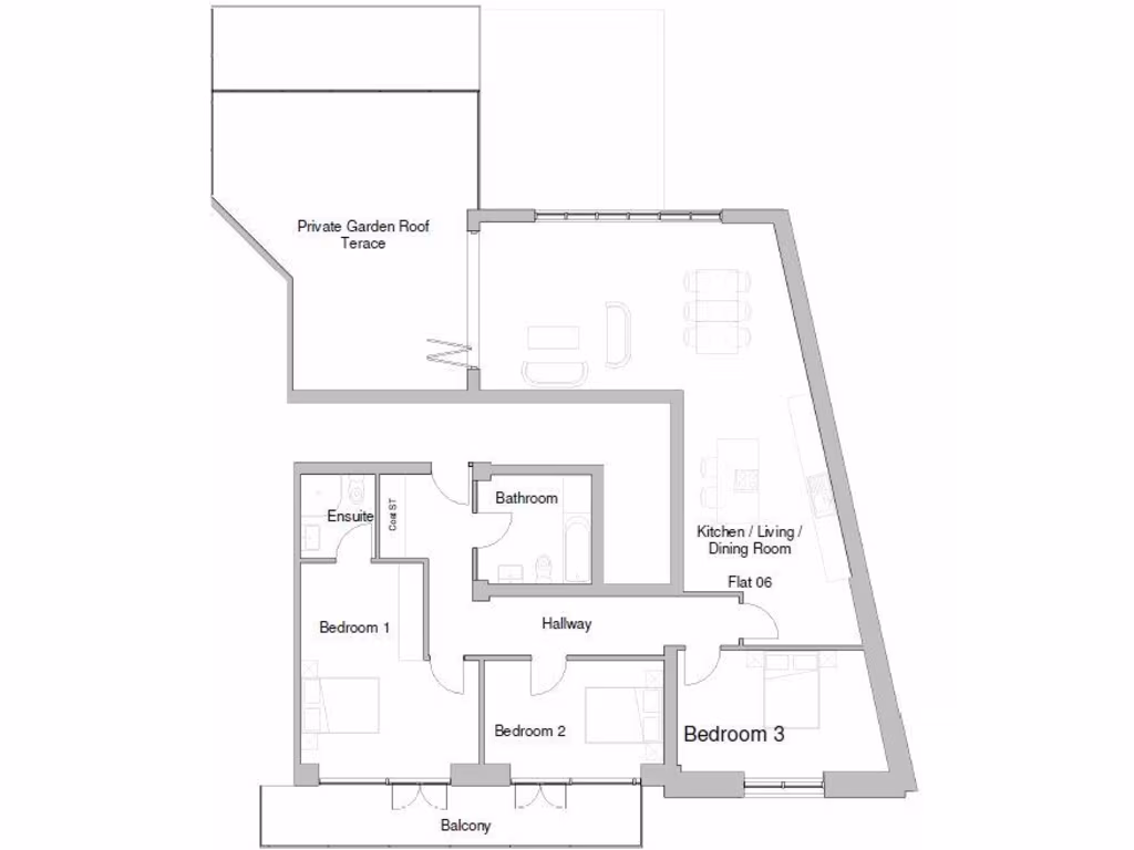
Large 1,313 sq ft three-bedroom penthouse with high-spec finish
Spacious three-bedroom penthouse offering 1,313 sq ft of contemporary waterside living, finished to a high specification by Oakwater Interiors. The apartment’s open-plan living, bi-fold doors and private roof terrace deliver exceptional entertaining space and uninterrupted views across the Bristol Channel and Whitmore Bay.
Built as part of a landmark redevelopment, the home includes underfloor heating fed by an air-source heat pump, a principal bedroom with ensuite and dressing area, and two bedrooms opening onto a glass-balustraded balcony. Its layout suits holiday-let use or a private coastal retreat and is the only remaining penthouse at this address.
Important practical points: the property is leasehold (approximately 249 years remaining) and service charges and council tax banding are yet to be confirmed. The immediate wider area is recorded as very deprived and the scheme classification notes communal retirement living; prospective buyers should consider management charges, local demographics and intended use restrictions before committing.
An open day incentive is available for viewings. Transport links to Cardiff Central, the M4 and Cardiff Airport are straightforward, and local seafront amenities and leisure facilities support strong short-stay rental and staycation demand.
2 bedroom apartment for sale in Apartment 2, Elysium, Barry, Vale of Glamorgan, CF62 — £495,000 • 2 bed • 2 bath • 1421 ft²
2 bedroom apartment for sale in Apartment 4, Elysium, Barry, Vale of Glamorgan, CF62 — £350,000 • 2 bed • 1 bath • 936 ft²
2 bedroom apartment for sale in Apartment 3, Elysium, Barry, Vale of Glamorgan, CF62 — £425,000 • 2 bed • 1 bath • 1205 ft²
3 bedroom apartment for sale in Apartment 4, Elysium, The Old Harbour, CF62 — £350,000 • 3 bed • 2 bath • 1377 ft²
3 bedroom apartment for sale in Elysium, The Old Harbour, CF62 — £350,000 • 3 bed • 2 bath • 1421 ft²
3 bedroom apartment for sale in Penthouse Apartment 6, Elysium, The Old Harbour, CF62 — £570,000 • 3 bed • 2 bath






















































