Move-in-ready family home with 50ft south garden and parking for four cars.
South-facing rear garden approx. 50ft with decking, patio and artificial turf
Off-street driveway parking for up to four cars; garage in a block nearby
Newly renovated interior with modern kitchen and four-piece family bathroom
Spacious front-aspect lounge with dining area and feature fireplace
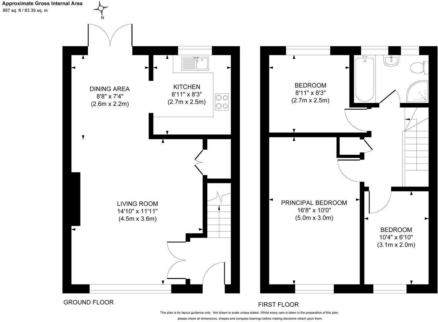
Property size 897 sqft on a small plot; average room sizes throughout
Double glazing installed before 2002; cavity walls likely without insulation
Freehold tenure; mains gas central heating and fast broadband/mobile signal
Average local crime and moderate council tax; some energy-efficiency work advised
This newly renovated three-bedroom terraced home in Knaphill offers a ready-to-move-in layout suited to families or first-time buyers. The interior pairs a modern kitchen and generous front-aspect lounge with a luxurious four-piece family bathroom, creating comfortable everyday living and practical entertaining space.
Outside, the south-facing rear garden extends to approximately 50ft and is low-maintenance, with decking, patio and artificial grass providing private outdoor space that backs onto woodland. Off-street parking for up to four cars plus a garage in a nearby block will suit households with multiple vehicles or buyers seeking flexible storage.
Practical considerations are presented clearly: the property is an average-sized 897 sq ft mid-terrace on a small plot, with double glazing fitted before 2002 and cavity walls likely uninsulated. Council tax is moderate and local crime levels are average. These points are balanced by mains gas central heating and fast broadband/mobile signal, useful for families and home workers.
Positioned in a cul-de-sac close to bus links and within easy reach of Knaphill village and Woking, the location benefits from good local schools and nearby green spaces. The freehold tenure and recent renovation mean the house is largely move-in ready, with modest improvements possible to increase energy efficiency and personalise finishes.
3 bedroom terraced house for sale in Tolldene Close, Knaphill, Woking, Surrey, GU21 — £420,000 • 3 bed • 1 bath • 853 ft²
3 bedroom terraced house for sale in Tolldene Close, Knaphill, Woking, Surrey, GU21 — £415,000 • 3 bed • 1 bath • 886 ft²
3 bedroom terraced house for sale in Mead Court, Knaphill, Woking, Surrey, GU21 — £500,000 • 3 bed • 1 bath • 1182 ft²
3 bedroom terraced house for sale in Tolldene Close, Knaphill, Woking, Surrey, GU21 — £375,000 • 3 bed • 1 bath • 679 ft²
3 bedroom semi-detached house for sale in Bloomfield Close, Knaphill, Woking, Surrey, GU21 — £520,000 • 3 bed • 1 bath • 970 ft²
3 bedroom end of terrace house for sale in Mint Walk, Knaphill, Woking, Surrey, GU21 — £375,000 • 3 bed • 1 bath • 783 ft²


































































