Spacious family house with large garden, garage and wide countryside views close to town.
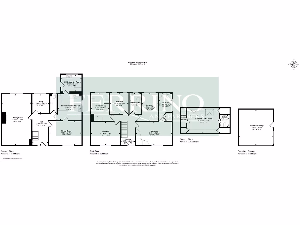
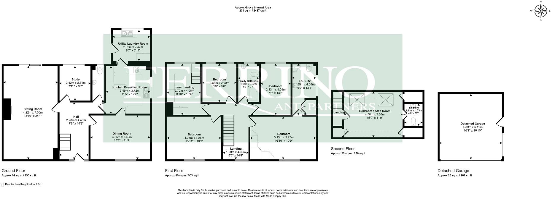
- Five bedrooms including master with en-suite
- Three reception rooms plus kitchen/breakfast and utility
- Large landscaped garden and detached double garage
- Driveway parking for 2–3 vehicles; quiet, elevated position
- Broad Wye Gorge and Forest of Dean views
- Mains gas boiler heating; double glazing (installation date unknown)
- Built 1983–1990 — mature construction, not new-build
- Local area shows high deprivation statistics despite affluent pocket
A substantial five-bedroom detached house arranged over two floors, set in a quiet, elevated position with long views towards the Wye Gorge and Forest of Dean. The home is presented in excellent order throughout and offers three reception rooms, a well-equipped kitchen/breakfast room, separate utility and a master bedroom with en-suite. The large landscaped garden, detached double garage and driveway parking for 2–3 vehicles suit family life and entertaining.
Built in the 1980s for executive-style living, the property benefits from mains gas central heating, double glazing and modern fixtures. Broadband speeds are fast and mobile reception is excellent, making the house practical for home-working and schooling. Good local schools are within easy reach, and the M4/M48 provide straightforward commuting to Bristol and South Wales.
Buyers should note this is a mature 1983–1990 build rather than a new home; double-glazing installation date is unknown. The immediate area records pockets of high deprivation statistically, although the local neighbourhood is classed as an affluent community and crime levels are average. Council tax banding is not provided. Overall this is a roomy, well-presented family home offering sizeable garden and garage space close to town amenities and transport links.
4 bedroom detached house for sale in Wyebank Way, Tutshill, Chepstow, Monmouthshire, NP16 — £475,000 • 4 bed • 2 bath • 1500 ft²
3 bedroom detached house for sale in Mount Way, Chepstow, NP16 — £595,000 • 3 bed • 2 bath • 1666 ft²
4 bedroom detached house for sale in Newport Road, Chepstow, NP16 — £514,500 • 4 bed • 2 bath • 1495 ft²
4 bedroom detached house for sale in Bailey Bridge Drive, Brunel Quarter, Chepstow, NP16 — £519,950 • 4 bed • 2 bath • 1518 ft²
5 bedroom detached house for sale in Hardwick Avenue, Chepstow, NP16 — £599,950 • 5 bed • 4 bath • 2164 ft²
4 bedroom detached house for sale in Meadow Walk, Chepstow, NP16 — £735,000 • 4 bed • 3 bath • 2810 ft²














































































































