Large plot, three receptions and strong extension potential for family living.
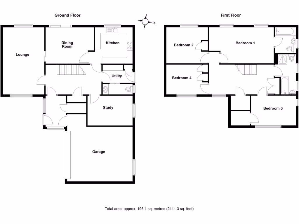
Four double bedrooms and over 2,000 sq ft of accommodation
Three separate reception rooms plus study/family room
Large corner plot of approximately one-fifth acre, wrap-around gardens
Double-width garage and ample driveway parking for multiple vehicles
Scope to extend and improve (subject to planning) — high potential
Built 1950–1966; will require cosmetic modernisation and ongoing maintenance
Double glazing fitted after 2002; mains gas central heating with boiler
Council tax banding expensive; average local crime statistics
A substantial four-bedroom detached family home set on an established one-fifth acre corner plot opposite Shephall Green. The house offers over 2,000 sq ft of living space with three separate reception rooms, a large kitchen/breakfast room, utility, study/family room and extensive storage — well suited to growing families who value space and flexibility.
The plot is a major asset: wrap-around mature gardens provide privacy, a sunny aspect and scope to extend (STP). Practical features include a double-width garage, ample driveway parking, mains gas central heating and double glazing fitted since 2002. The location sits within a historic Stevenage hamlet with nearby schools, local amenities and good broadband and mobile signal.
The property dates from the mid-20th century (1950–1966) and offers clear potential to modernise and reconfigure; buyers should expect cosmetic updating and improvement work to bring interiors to contemporary standards. Council tax is expensive and the house presents typical maintenance responsibilities for its age. No flood risk is recorded.
Overall this is a roomy, characterful detached house with strong expansion potential on a large private plot — ideal for families seeking size, garden and future extension possibilities.
5 bedroom detached house for sale in Shephall Green, Stevenage, Hertfordshire, SG2 — £650,000 • 5 bed • 1 bath • 1904 ft²
4 bedroom detached house for sale in Coopers Close, Stevenage, Hertfordshire, SG2 — £765,000 • 4 bed • 2 bath • 2224 ft²
4 bedroom detached house for sale in Berkeley Close, Stevenage, Hertfordshire, SG2 — £625,000 • 4 bed • 2 bath • 1520 ft²
4 bedroom detached house for sale in Chancellors Road, Stevenage, Hertfordshire, SG1 — £1,150,000 • 4 bed • 4 bath • 2102 ft²
5 bedroom detached house for sale in Kessingland Avenue, Stevenage, SG1 — £625,000 • 5 bed • 3 bath • 1857 ft²
4 bedroom detached house for sale in Baldock Road, Stotfold, Hitchin, Central Bedfordshire, SG5 4PB, SG5 — £550,000 • 4 bed • 2 bath • 1362 ft²






































































































