Brand-new, fully furnished over-50s park home — low-maintenance living near Darlington.
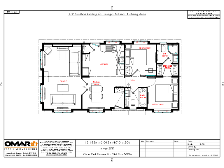
Brand-new, BS3632-built two-bed park home, approx. 450 sq ft
Set in a peaceful countryside hamlet just outside Heighington, this brand-new, single-storey park home offers low-maintenance living designed for the over-50s. At around 450 sq ft the home provides two bedrooms, two bathrooms and an open-plan kitchen/dining area finished to BS3632 standards and supplied fully furnished as standard — ideal if you want a quick, turnkey move.
The park emphasises community and convenience: gated grounds, landscaped communal areas and an on-site pub encourage social living, while flexible moving options (including part exchange and assisted move) and stamp-duty exemption reduce typical buying friction. Pets are welcome and the property is built for year-round residency.
Be clear on the trade-offs: the home is compact, so it suits downsizers rather than households needing lots of space. Broadband speeds on the site are very slow, and local recorded crime is above average — factors to consider if you regularly work from home or prioritise a low-crime setting. Tenure details are not specified and there is an ongoing site fee and service charge to budget for.
Overall this is a modern, low-maintenance option for speakers of slow-paced countryside living who prioritise community, convenience and a ready-to-live-in home. It will particularly suit retirees or downsizers seeking an easy lifestyle and scenic access to Darlington, the A1(M) and wider North Yorkshire attractions.
2 bedroom park home for sale in Walworth Road, Darlington,
DL2 2XT, DL2 — £169,995 • 2 bed • 2 bath • 720 ft²
2 bedroom park home for sale in Walworth Road, Darlington,
DL2 2XT, DL2 — £119,995 • 2 bed • 2 bath • 480 ft²
2 bedroom park home for sale in Walworth Road, Darlington,
DL2 2XT, DL2 — £169,995 • 2 bed • 2 bath • 760 ft²
2 bedroom park home for sale in Walworth Road, Darlington,
DL2 2XT, DL2 — £114,995 • 2 bed • 2 bath • 456 ft²
2 bedroom park home for sale in Walworth Road, Darlington,
DL2 2XT, DL2 — £169,995 • 2 bed • 2 bath • 800 ft²
2 bedroom park home for sale in Walworth Road, Darlington,
DL2 2XT, DL2 — £164,995 • 2 bed • 2 bath • 720 ft²






































































































































