Chain-free three-bed semi with large rear garden, garage and good local schools.
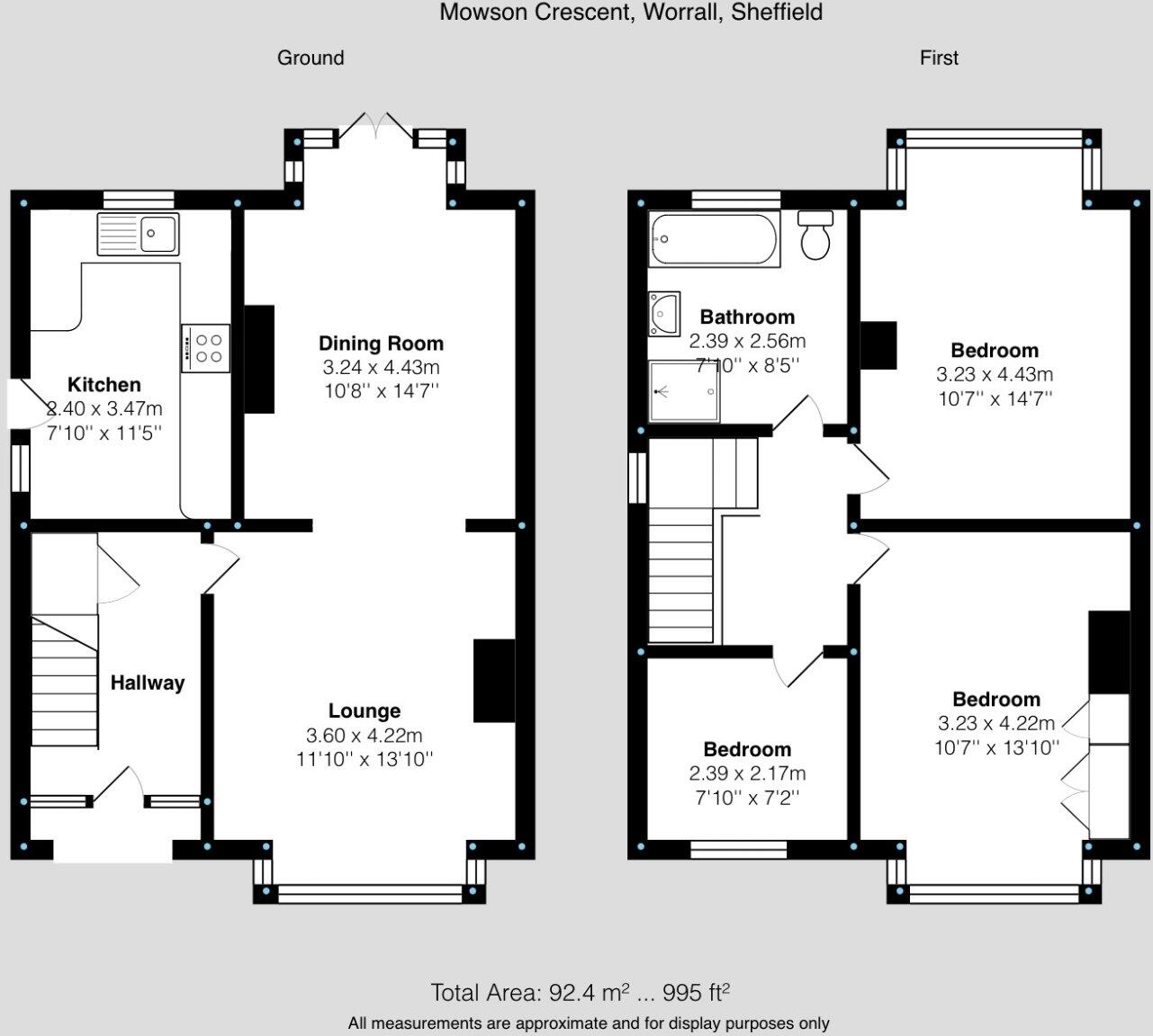
Chain-free three-bedroom semi-detached house with attached garage
Large tiered rear garden and patio — strong family/outdoor appeal
Driveway providing off-street parking
Leasehold (approx. 730 years remaining); small ground rent payable
Single family bathroom only; may require extra bathroom for larger families
Internal space is average for a three-bed; scope for modest modernisation
Neutral decoration and carpets present; living room with garden access
Located in low-crime, very affluent suburb with good primary schools
Set on a quiet crescent in sought-after Worrall, this three-bedroom semi-detached house offers straightforward family living with a large rear garden and attached garage. The accommodation is a practical two-storey layout with a lounge/diner, fitted kitchen and three bedrooms upstairs — the internal space reads as average for a three-bed but benefits from neutral decoration and good natural light.
The plot is a key strength: a long, tiered rear lawn and patio create private outdoor space for children and entertaining, while a driveway and garage provide useful off-street parking and storage. The property is chain-free and sits in a low-crime, very affluent suburb close to well-regarded primary schools and local amenities, making it suitable for families seeking stability and convenience.
Buyers should note this is a leasehold house (approximately 730 years remaining) with a small ground rent. There is a single family bathroom and the internal footprint is average, so those seeking larger open-plan living or an additional shower room may wish to consider scope for modest reconfiguration or improvement. Services, appliances and exact fitments have not been tested and should be independently checked before purchase.
Overall this home promises immediate move-in potential for a family or purchaser wanting a manageable improvement project on a generous plot in a desirable suburb. The guide price reflects the location and plot size; viewings will suit buyers prioritising garden space, parking and good local schools.
3 bedroom detached house for sale in Birley View, Worrall, Sheffield, S35 — £335,000 • 3 bed • 1 bath • 914 ft²
3 bedroom semi-detached house for sale in Turnpike Croft, Grenoside, Sheffield, South Yorkshire, S35 — £300,000 • 3 bed • 2 bath • 1056 ft²
4 bedroom detached house for sale in Towngate Grove, Worrall, Sheffield, S35 — £475,000 • 4 bed • 2 bath • 1757 ft²
3 bedroom semi-detached house for sale in Halifax Road, Wadsley Bridge, S6 — £200,000 • 3 bed • 1 bath • 826 ft²
3 bedroom semi-detached house for sale in Basegreen Drive, Sheffield, S12 — £200,000 • 3 bed • 1 bath • 1037 ft²
3 bedroom semi-detached house for sale in Thorpe House Road, Norton Lees, Sheffield, S8 9NR, S8 — £260,000 • 3 bed • 1 bath • 996 ft²






































































