CB7 5YZ - 4 bedroom detached house for sale in Snowberry Way, Soham,…

View on Property Piper

4 bedroom detached house for sale in Snowberry Way, Soham, CB7

Summary - 8 SNOWBERRY WAY, SOHAM CB7 5YZ

4 bed 2 bath Detached

**Standout Features:**
- Spacious 4-bedroom, 2-bathroom detached home
- Located in a quiet cul-de-sac in Soham, CB7 area
- Double garage with off-street parking for up to 4 vehicles
- Modern kitchen with integrated appliances
- Private enclosed rear garden with patio
- Gas central heating and double-glazed windows
- Chain-free sale

**Potential Downsides:**
- Built between 1983-1990, may require updates to some areas
- Moderate council tax band

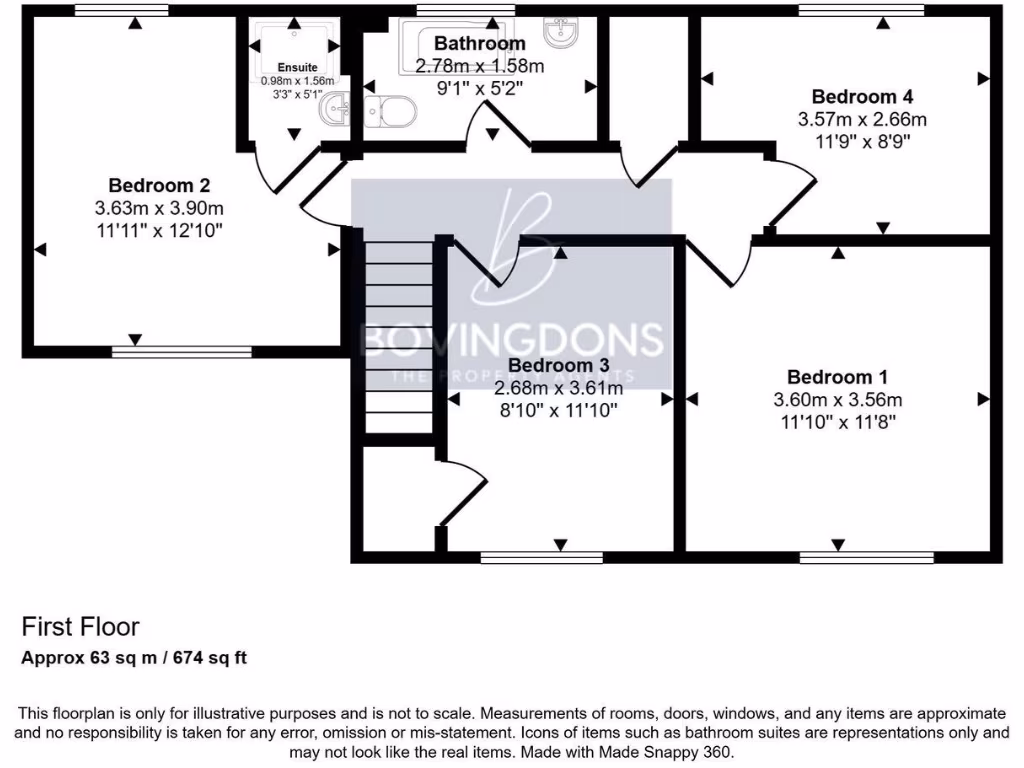
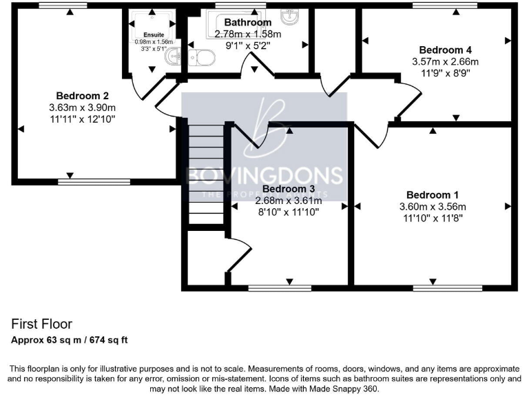
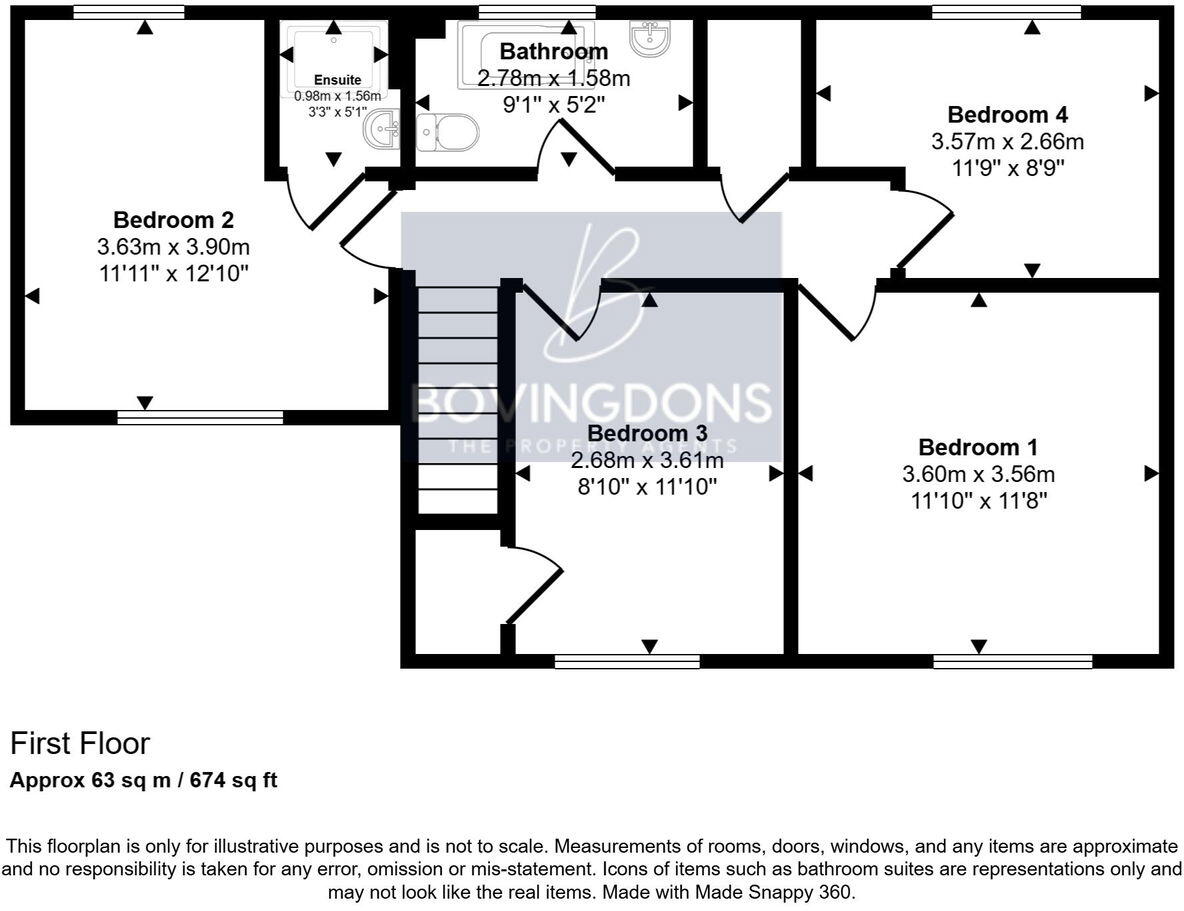
This beautifully presented 4-bedroom detached house in the inviting cul-de-sac of Snowberry Way is ideal for families seeking comfort and space. With a generous living room that flows into a dining area and a kitchen filled with integrated appliances, this home perfectly accommodates both family gatherings and entertaining guests. Each of the four bedrooms offers ample light, with the master bedroom featuring an ensuite for added privacy.

The private rear garden is a serene retreat, perfect for outdoor activities or relaxation, while the double garage and driveway provide convenient parking for four vehicles. Situated in the affluent town of Soham, residents enjoy proximity to local shops, schools, and excellent transport links, including easy access to Cambridge and London. Viewing is highly recommended as such properties in this desirable location are rarely available for long! This home is not only a spacious family haven but also a fantastic investment with ample potential for future enhancements.

Property Details

Brochure Descriptions

Image Descriptions

Floorplan Description

Rooms

Textual Property Features

Detected Visual Features

EPC Details

Nearby Schools

Nearest Bars And Restaurants

,,,,}

Nearest General Shops

,,}

Nearest Grocery shops

,,}

Nearest Supermarkets

,,}

Nearest Religious buildings

,,}

Nearest Medical buildings

,,,}

Nearest Leisure Facilities

,,,,}

Nearest Tourist attractions

,,}

Nearest Train stations

,,,,}

Nearest Bus stations and stops

,,,,}

Nearest Hotels

,,}

Tags

Local Market Stats

Similar Properties

Meta

High Res Images

Compatible Images

Low res Images

Thumbnails

Raw Images

High Res Floorplan Images

Compatible Floorplan Images

Low res Floorplan Images

FloorplanImages Thumbnail

Raw Floorplan Images