CF45 3RF - 2 bedroom terraced house for sale in Woodland Terrace, Moun…

View on Property Piper

2 bedroom terraced house for sale in Woodland Terrace, Mountain Ash, Rhondda Cynon Taf, CF45

Summary - 8 WOODLAND TERRACE MOUNTAIN ASH CF45 3RF

2 bed 1 bath Terraced

**Key Features:**
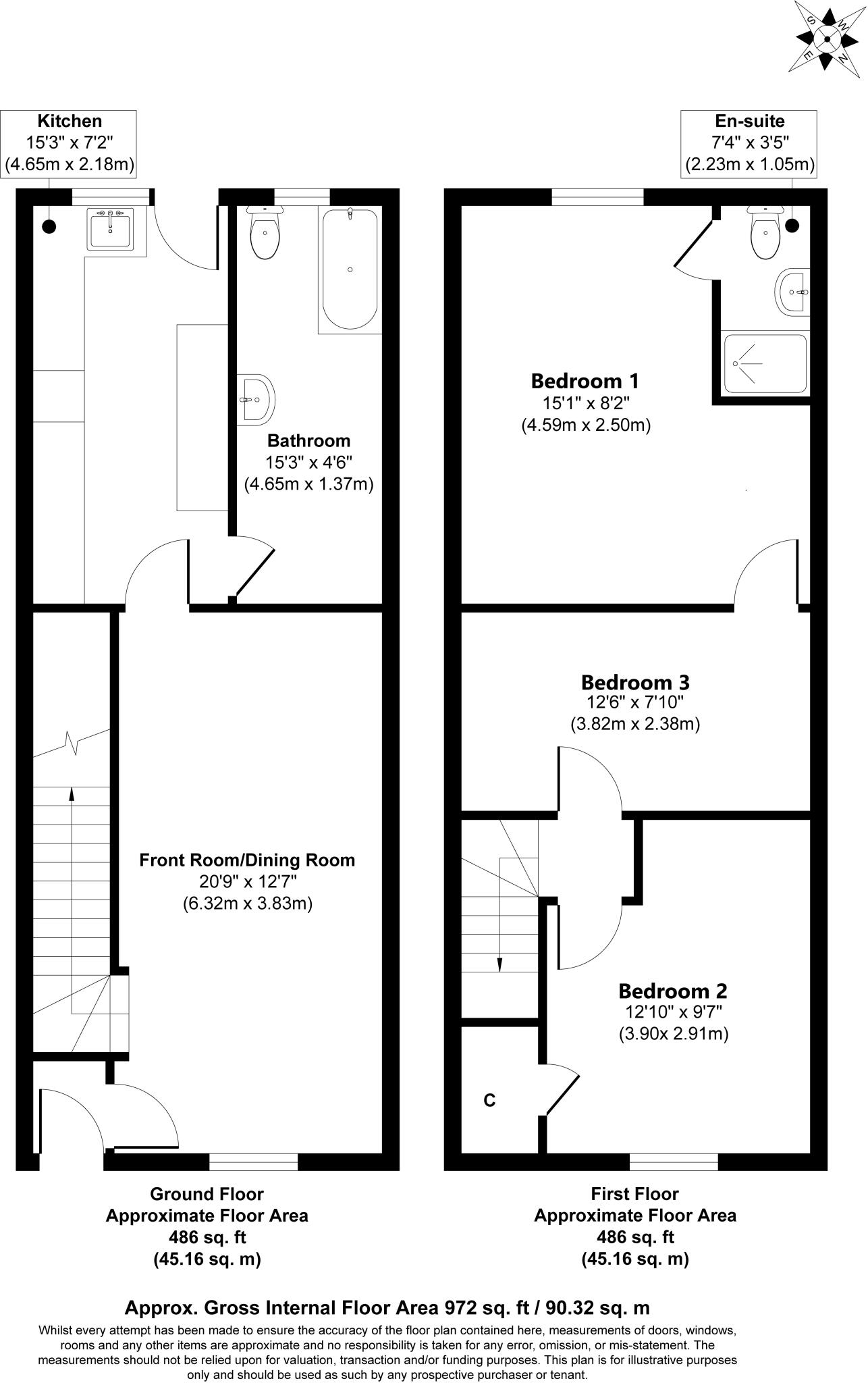
- **3 well-proportioned bedrooms** (one with ensuite)
- **Spacious front-facing living/dining room** with natural light
- **972 sq. ft.** with a **rear patio garden**
- **No chain**, allowing for a quick sale
- **Close to amenities** and **short walk to Mountain Ash train station**

Discover the potential of this mid-terrace Victorian home in Mountain Ash, perfect for families or first-time buyers eager to make it their own. With a generous living/dining area and three spacious bedrooms—one featuring an ensuite—this property offers ample room for comfortable living. The rear patio garden presents opportunities for outdoor activities or entertaining, providing a blank canvas for customization.

Located near local amenities, schools, and just a short stroll from the train station, everyday conveniences are within easy reach. With a council tax that is very affordable, this home stands out in an area designated as deprived, giving buyers a chance to invest in a community with significant growth potential.

The home offers solid bones but does require modernization and updating, particularly regarding insulation. Given its inviting price and no onward chain, this property won't last long on the market. Seize this opportunity to shape your ideal living space in the heart of the Welsh countryside—schedule your viewing today!

Property Details

Image Descriptions

Floorplan Description

Rooms

Textual Property Features

Detected Visual Features

EPC Details

Nearest Bars And Restaurants

,,,,}

Nearest General Shops

,,}

Nearest Grocery shops

,,}

Nearest Supermarkets

,,}

Nearest Religious buildings

,,}

Nearest Medical buildings

,,,}

Nearest Leisure Facilities

,,,,}

Nearest Tourist attractions

,,}

Nearest Train stations

,,,,}

Nearest Bus stations and stops

,,,,}

Nearest Hotels

,,}

Tags

Local Market Stats

Similar Properties

Meta

High Res Images

Compatible Images

Low res Images

Thumbnails

Raw Images

High Res Floorplan Images

Compatible Floorplan Images

Low res Floorplan Images

FloorplanImages Thumbnail

Raw Floorplan Images