**Standout Features:**
- Two-bedroom maisonette in Abbey Manor Park
- Allocated parking for two vehicles
- Enclosed courtyard garden, ideal for outdoor gatherings
- Convenient access to local amenities
- Quiet, low-crime neighborhood
- Potential for first-time buyers or buy-to-let investors
- Well-presented with modern kitchen and bathroom
**Concerns:**
- Small overall size (419 sq ft)
- Leasehold tenure
- Standard ceiling heights in interior spaces
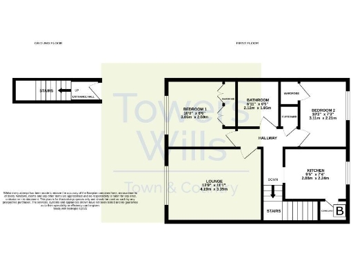
Discover this charming two-bedroom maisonette nestled in the sought-after Abbey Manor Park, offering a perfect blend of comfort and convenience. With allocated parking for two vehicles and an inviting enclosed courtyard garden, it's ideal for hosting summer barbecues or relaxing in privacy. The property features a practical layout including a cozy lounge, modern kitchen, and bathroom with an electric shower, making it a fantastic option for first-time buyers or buy-to-let investors.
Enjoy the perks of living in a tranquil area with low crime rates while benefiting from easy access to local amenities like pubs and shops, as well as reputable schools, including outstanding-rated primary institutions. Although this compact home measures 419 sq ft and falls under leasehold tenure, its well-maintained spaces provide tremendous potential for personalization and growth. Early viewing is advised, as opportunities in this coveted neighborhood tend to garner significant interest!
2 bedroom terraced house for sale in Long Mead, Yeovil, Somerset, BA21 — £190,000 • 2 bed • 1 bath • 522 ft²
2 bedroom terraced house for sale in The Toose, Yeovil, Somerset, BA21 — £210,000 • 2 bed • 1 bath • 404 ft²
2 bedroom flat for sale in Monk Barton Close, Yeovil, Somerset, BA21 — £135,000 • 2 bed • 1 bath • 520 ft²
2 bedroom end of terrace house for sale in Acer Drive, Yeovil, Somerset, BA21 — £210,000 • 2 bed • 1 bath • 417 ft²
2 bedroom apartment for sale in Merevale Way, Yeovil, BA21 — £140,000 • 2 bed • 1 bath • 639 ft²
2 bedroom terraced house for sale in Shelley Close, Yeovil, Somerset, BA21 — £200,000 • 2 bed • 1 bath • 470 ft²


































































